◆平成21年1月に全面改装工事!
・キッチン、浴室、トイレ、洗面所
・壁、天井(クロス、塗装等)
・床(フローリング等)
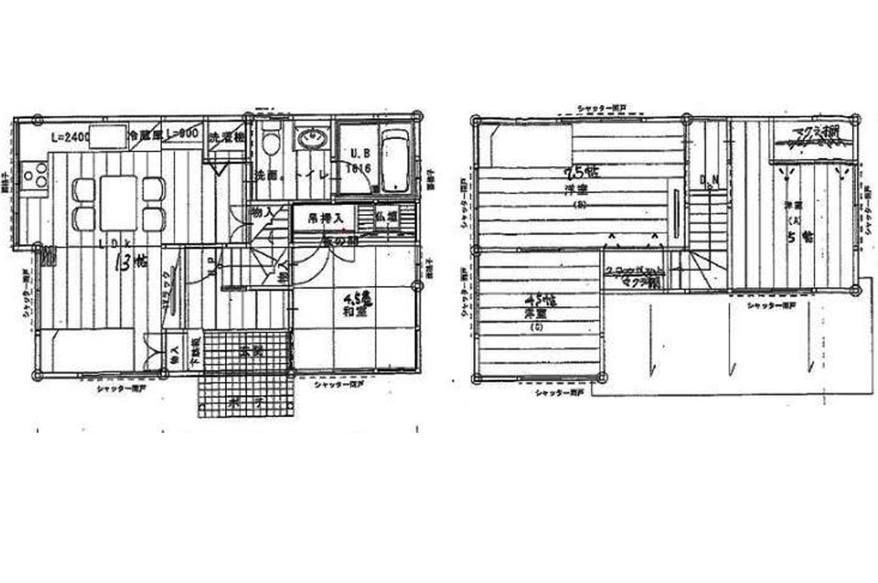
◆角地の4LDK!
◆遊歩道が整った久米田池が近くお散歩やジョギングを楽しめます!
◆空家につきお引渡し即可!










外観

間取り図


LDK

洋室

バスルーム

八木南小学校 (880m)

久米田中学校 (430m)

ローソン岸和田尾生町5丁目店 (930m)

コープ久米田 (1,340m)

久米田池 (590m)
| 価格 | 1300万円 | 間取り | 4LDK |
|---|---|---|---|
| 所在地 | 大阪府岸和田市池尻町 | ||
| 交通 | JR阪和線久米田駅徒歩 15分 |
||
| 土地権利 | 所有権 | 地目 | 宅地 |
| 土地面積 | 92.71㎡ (28.04坪) | 建物面積 | 79.24㎡ (23.97坪) |
| 私道負担 | 無 | 私道負担面積 | - |
| 他面積 | - | ||
| 建物構造 | 木造 2階建 | ||
| 建ぺい率 | 40% | 容積率 | 80% |
| 制限等 | 市街化区域 第一種低層住居専用地域 風致地区 | ||
| 駐車スペース | 普通車1台 | ||
| 建築年月 | 1976年1月 | 改装年月 | - |
| 設備・特徴 | 電気 公営水道 公共下水 IHコンロ ゆとりの4LDK 改装履歴あり 即引渡可 駐車スペースあり 角地 閑静な住宅地 食洗機 L型キッチン | ||
| 費用等 | - | ||
| 特記事項 | ①駐車台数は車種による制限あり。 ②実際に駐車可能かはお客様にて、現地でご確認をお願いいたします。 | ||
| 現況 | 空家 | ||
| 取引態様 | 仲介 | 引渡可能時期 | 即時 |
| 情報公開日 | 2026年02月19日 | 次回更新予定日 | 2026年03月05日 |