◆南東向きで日当りの良い5階部分!
◆2025年11月リフォーム!
・フローリング、クロス
・キッチン、浴室、洗面所、給湯器
◆小学校や公園が近くて子育て世帯にもおすすめ!









タイムス泉大津 外観



エントランスホール

エントランス

ゴミ集積所

駐車場

戎小学校 (490m)

誠風中学校 (1,890m)

KOHYO泉大津店 (1,030m)

杉本医院 (460m)

セブンイレブン泉大津下之町店 (320m)

サンディ泉大津旭店 (1,230m)

東港公園 (450m)

シーパスパーク (950m)
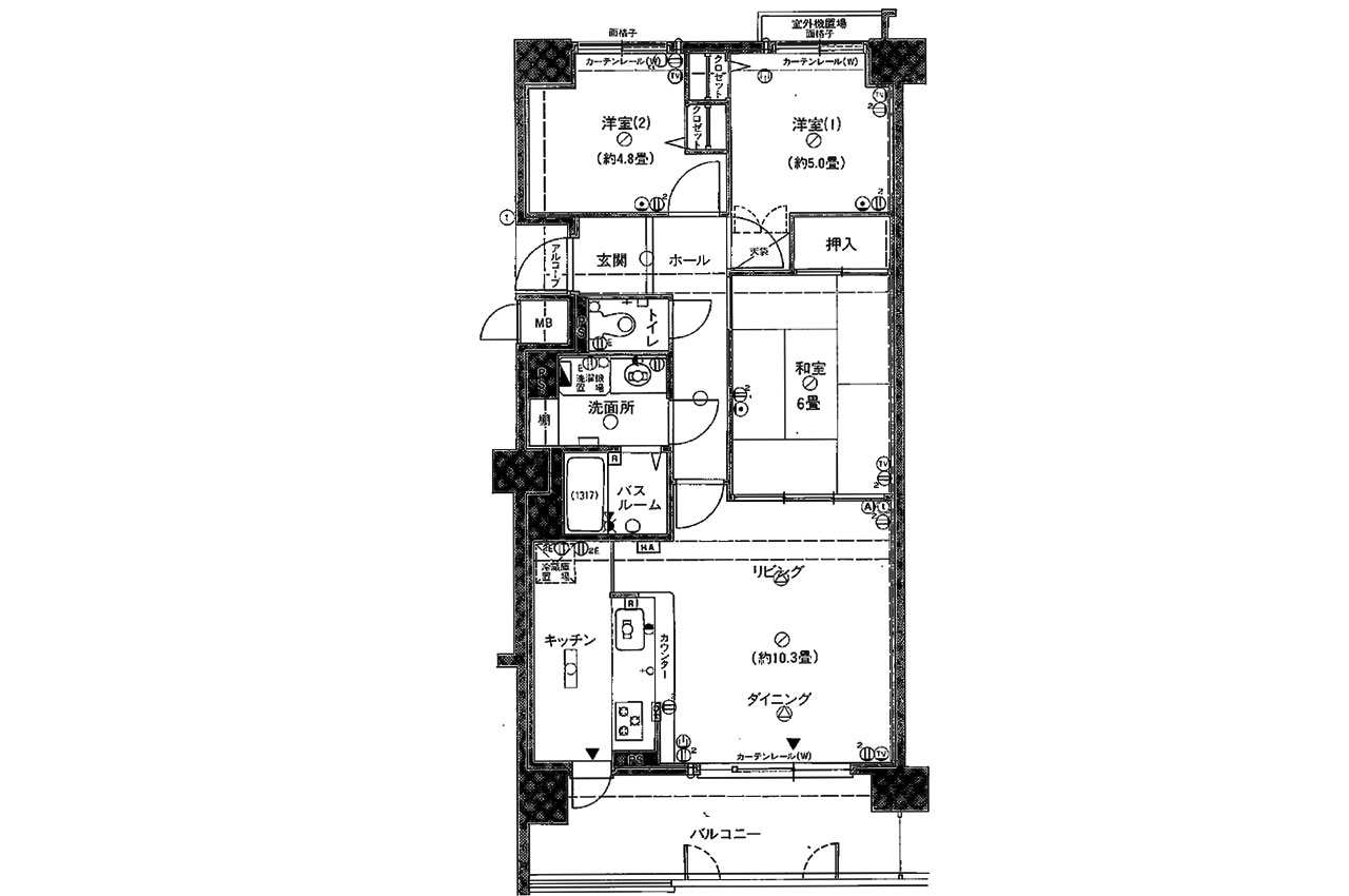
| 価格 | 1430万円 | 間取り | 3LDK |
|---|---|---|---|
| 所在地 | 大阪府泉大津市西港町 | ||
| 交通 | 南海本線泉大津駅徒歩 13分 |
||
| 土地権利 | 所有権 | ||
| 専有面積 | 67.40㎡(壁芯) | 総戸数 | 68戸 |
| バルコニー面積 | 10.80㎡ | バルコニー向き | 南東 |
| 他面積 | - | ||
| 構造 | RC 9階建 5階部分 | ||
| 管理費 | 7,100円 | 修繕積立金 | 9,210円 |
| 管理形態 | 全部委託 | 管理人 | 日勤 |
| 建築年月 | 1991年1月 | 改装年月 | 2025年11月 |
| 改装内容 | 内装壁 内装床 キッチン 浴室 洗面所 その他 | ||
| 設備・特徴 | 電気 公営水道 都市ガス 公共下水 全居室収納あり 2階以上 駐輪場 急行停車駅 学校近し 公園近く 日当良好 カウンターキッチン | ||
| 費用等 | 自治会:月 200円 |
||
| 特記事項 | 駐車場:空無(要確認)状況により変動・お問合せください。 |
||
| 現況 | 空家 | ||
| 取引態様 | 仲介 | 引渡可能時期 | 相談 |
| 情報公開日 | 2026年01月09日 | 次回更新予定日 | 2026年01月23日 |