**便利で快適な暮らしが叶うフジ住宅の新築一戸建て「アイーナネオ」**
◆泉北ニュータウンエリアの緑豊かな閑静な住宅街!
◆50坪超のゆとりある敷地!
◆家中の空気をきれいに保つ「炭の家」!
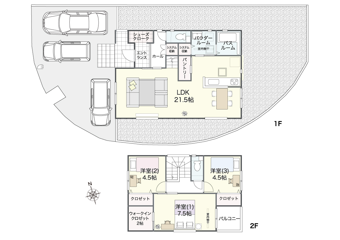
◆各所に収納が充実した間取りです!
◆家族が集うLDKはゆったり広々21.5帖!
◆高倉公園まで徒歩5分!子育てファミリーにもうれしい立地!
◆住宅性能評価取得!耐震等級3!
◆フジ住宅の新築一戸建ては【ZEH水準省エネ住宅】だから「住宅ローン減税」の対象です!



























アイーナネオ堺高倉台2号地 外観

間取り図:3LDK+WIC+SC(家具・車の表記はイメージ配置になり、実際には付きません)

外観

土地51.4坪のゆったり3LDK(家具・車の表記はイメージ配置になり、実際には付きません)

LDK:家族がゆったりと過ごせる21.5帖の広々LDK。

LDK:三面採光の明るく開放的な空間です。

LDK

LDK:家族が顔を合わせやすいリビング階段の間取り。

キッチン(食洗機付き)

キッチン(食洗機付き)

パントリー:保存食や日用消耗品などの収納に便利。

エントランス

エントランス:玄関周りをすっきり保つシューズクローク付き。

シューズクローク

ホール内システム収納

パウダールーム

パウダールーム内システム収納

バスルーム(浴室乾燥機付き)

1階トイレ

2階トイレ

洋室1:バルコニーに面した明るいお部屋です。

洋室1:ウォークインクロゼット付きでお部屋をより広く使えます。

ウォークインクロゼット

バルコニー

洋室2

洋室2

洋室3

洋室3

外観

玄関アプローチ

庭

【炭の家/ピュアエア】炭+PM2.5対応フィルターで、家中の空気をクリーンに保ちます。

BELSとは第3者評価機関が評価し認定した『建築物省エネルギー性能』をわかりやすく表示したものです。

【揺れに耐える耐震】地震や台風などの災害に強い「耐震等級3」を実現しました。

【揺れを吸収する制震】地震エネルギーを吸収する制震システム「TRCダンパー」を採用しています。

【FX-WOOD工法】柱材と壁面に強度を持たせ、耐震や気密性を両立させたフジ住宅独自の工法です。

【FX-BASEテクノロジー】フジ住宅独自のベタ基礎+高精度地盤調査で安心です。

【住まいの保証】第三者機関による「住宅性能評価」と「地盤保証制度」を採用。

お引渡し後、一定期間の不具合を無償で補修する安心の定期アフターサービスです。

2026年「オリコン顧客満足度調査建売住宅ビルダー」近畿第1位・近畿大阪府部門第1位を受賞しました。

泉北高倉小学校 (1,220m)

三原台中学校 (880m)

泉北光明幼稚園 (320m)

晴美台幼稚園 (480m)

平和の園 (1,200m)

マックスバリュ泉北晴美台店 (470m)

サンプラザ三原台店 (1,050m)

ジョイパーク泉ヶ丘 (1,750m)

パンジョ (1,950m)

ファミリーマート泉北晴美台二丁店 (390m)

ぐんぐんキッズクリニック泉ヶ丘 (230m)

高倉公園 (350m)

紀陽銀行泉ヶ丘支店 (1,900m)

堺市立ビックバン (1,950m)

堺市南区役所 (4,070m)
| 価格 | 4490万円 | 間取り | 3LDK+WIC +SC |
|---|---|---|---|
| 所在地 | 大阪府堺市南区高倉台4丁 | ||
| 交通 | 南海泉北線泉ケ丘駅徒歩 26分 南海高野線金剛駅徒歩 44分 |
||
| 土地権利 | 所有権 | 地目 | 宅地 |
| 土地面積 | 169.94㎡ (51.40坪) (公簿) | 建物面積 | 96.07㎡ (29.06坪) |
| 道路幅員 | 東 19.95m 西 6.25m 南 8.28m | ||
| 私道負担 | 無 | 私道負担面積 | - |
| 他面積 | - | ||
| 建物構造 | 木造 2階建 | 建築確認番号 | R07確認建築近確0001394号(2025年8月20日) |
| 総区画数 | 全2区画 | 販売戸数 | 1戸 |
| 建ぺい率 | 50% | 容積率 | 80% |
| 制限等 | 市街化区域 第一種低層住居専用地域 | ||
| 駐車スペース | 普通車1台 軽自動車2台 | ||
| 建築年月 | 2026年1月 | 改装年月 | - |
| 設備・特徴 | 電気 公営水道 都市ガス 公共下水 新築一戸建て アフターサービス保証付 炭の家 耐震等級3 買物便利 公園近く LDK16帖以上 全居室洋室 収納多し 全居室収納あり ウォークインクロゼット シューズクローク パントリー 複層ガラス 室内物干 トイレ2ヶ所 対面キッチン リビング階段 食洗機 浴室乾燥機 庭付き 駐車3台以上OK 閑静な住宅地 角地 前面道路6m以上 土地広 | ||
| 費用等 | - | ||
| 特記事項 | ※土地面積には道路集水桝越境による建確申請外面積0.16m2を含む ①駐車台数は車種による制限あり。 ②実際に駐車可能かはお客様にて、現地でご確認をお願いいたします。 |
||
| 現況 | 完成済 | 取引条件有効期限 | 2026年04月18日 |
| 取引態様 | 売主 | 引渡可能時期 | 契約後3ヶ月 |
| 情報公開日 | 2026年04月04日 | 次回更新予定日 | 2026年04月18日 |