= Price ============
プライスダウン!!
========== Down =
**便利で快適な暮らしが叶うフジ住宅の新築一戸建て「アイーナネオ」**
◆ゆとりの敷地にスムーズな生活動線と収納力を備えた快適設計!
◆家族の気配を感じやすいリビング階段の間取り!
◆おうちの空気をきれいに保つ「炭の家」!
◆駐車2台分のスペースがあります(車種による)!
◆スーパー、コンビニ、ドラッグストアが徒歩10分圏内に揃う好立地!
◆小学校や公園が近くで子育てファミリーにうれしい住環境!
◆住宅性能評価取得!耐震等級3!
◆フジ住宅の新築一戸建ては【ZEH水準省エネ住宅】だから「住宅ローン減税」の対象です!



























\プライスダウン/アイーナネオ堺深井清水町

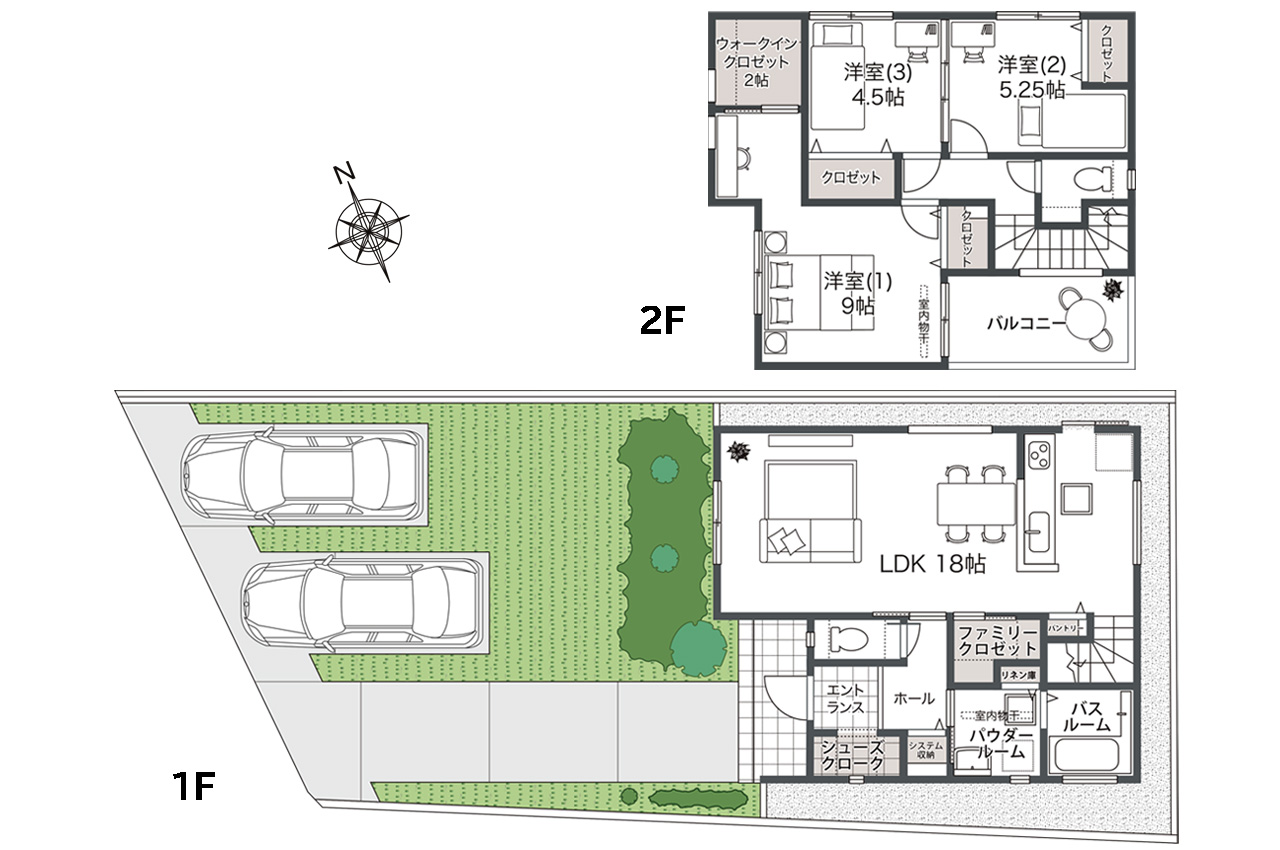
3LDK+FC+SC+WIC(家具・車の表記はイメージ配置になり、実際には付きません)

外観

LDK18帖

3LDK+FC+SC+WIC(家具・車の表記はイメージ配置になり、実際には付きません)

LDK18帖:家族みんなで寛げるゆったりとした空間です。

リビングダイニング:リビングからお庭(駐車場)へ出られます。

キッチン:食洗機付きシステムキッチン

キッチン:換気やゴミ出しに便利な勝手口付き。

キッチン:節水や家事の時短にもなる食洗機付きのキッチン。

リビングを見渡しやすいオープンキッチン。お料理をしながら家族との会話を楽しめます。

パントリー:キッチン横に設置されたパントリーは食品や消耗品のストックに便利。

ファミリークロゼット:外出まわりのアイテムやお掃除道具、日用品など色々な収納に便利です。

エントランス:シューズクローク付きですっきり空間をキープ。

エントランス:シューズクロークにはレインコートや傘、ベビーカーなども収納できます。

ホールのシステム収納。外出や帰宅時にコートや上着をさっと掛けられるアウター収納に便利。

パウダールーム:上部には便利な室内物干しを設置しています。

パウダールーム:タオルや洗剤などのストックなどに便利なリネン庫を設置。

バスルーム:浴室暖房乾燥機付きで毎日の入浴が快適に。

1階トイレ

2階トイレ:便利な可動棚付き。

洋室(1)9帖:主寝室にぴったりのゆったりとしたお部屋です。

ウォークインクロゼット:衣類や季節の家電などをすっきり収納でき、お部屋を広く使えます。

バルコニー:洋室(1)から出入りできます。

洋室(2)5.25帖

洋室(3)4.5帖

洋室(2)と洋室(3):個室としても、扉を開放して広々空間としても使える間取り。

外観

【炭の家/ピュアエア】炭+PM2.5対応フィルターで、家中の空気をクリーンに保ちます。

BELSとは第3者評価機関が評価し認定した『建築物省エネルギー性能』をわかりやすく表示したものです。

【揺れに耐える耐震】地震や台風などの災害に強い「耐震等級3」を実現しました。

【揺れを吸収する制震】地震エネルギーを吸収する制震システム「TRCダンパー」を採用しています。

【FX-WOOD工法】柱材と壁面に強度を持たせ、耐震や気密性を両立させたフジ住宅独自の工法です。

【FX-BASEテクノロジー】フジ住宅独自のベタ基礎+高精度地盤調査で安心です。

【住まいの保証】第三者機関による「住宅性能評価」と「地盤保証制度」を採用。

お引渡し後、一定期間の不具合を無償で補修する安心の定期アフターサービスです。

2026年「オリコン顧客満足度調査建売住宅ビルダー」近畿第1位・近畿大阪府部門第1位を受賞しました。

深井小学校 (480m)

深井中央中学校 (1,310m)

深井こども園(認定こども園) (500m)

クレア保育園 (400m)

万代堺深井店 (340m)

グルメシティ深井駅前店 (880m)

コノミヤ深井店 (920m)

ウエルシア堺深井清水町店 (340m)

ローソン堀上町東店 (470m)

ふじわらしんいち総合クリニック (530m)

日野クリニック (910m)

堺深井郵便局 (430m)

ソフィア・堺 (380m)

堺市中区役所 (1,170m)

清水こやま公園 (160m)
| 価格 | 4490万円 | 間取り | 3LDK+WIC +SC+FC |
|---|---|---|---|
| 所在地 | 大阪府堺市中区深井清水町 | ||
| 交通 | 南海泉北線深井駅徒歩 12分 JR阪和線上野芝駅徒歩 32分 |
||
| 土地権利 | 所有権 | 地目 | 宅地 |
| 土地面積 | 155.49㎡ (47.03坪) (公簿) | 建物面積 | 96.49㎡ (29.18坪) |
| 道路幅員 | 西 6.00m | ||
| 私道負担 | 無 | 私道負担面積 | - |
| 他面積 | - | ||
| 建物構造 | 木造 2階建 | 建築確認番号 | R07確認建築近確0001055号(2025年7月23日) |
| 総区画数 | 全1区画 | 販売戸数 | 1戸 |
| 建ぺい率 | 60% | 容積率 | 200% |
| 制限等 | 市街化区域 第一種住居地域 | ||
| 駐車スペース | 普通車2台 | ||
| 建築年月 | 2025年11月 | 改装年月 | - |
| 設備・特徴 | 電気 公営水道 都市ガス 公共下水 新築一戸建て アフターサービス保証付 炭の家 耐震等級3 買物便利 学校近し 公園近く LDK16帖以上 全居室洋室 収納多し 全居室収納あり ウォークインクロゼット シューズクローク ファミリークロゼット パントリー 複層ガラス 室内物干 トイレ2ヶ所 対面キッチン リビング階段 食洗機 浴室乾燥機 庭付き 駐車2台OK 前面道路6m以上 土地広 | ||
| 費用等 | - | ||
| 特記事項 | ①駐車台数は車種による制限あり。 ②実際に駐車可能かはお客様にて、現地でご確認をお願いいたします。 | ||
| 現況 | 完成済 | 取引条件有効期限 | 2026年04月04日 |
| 取引態様 | 売主 | 引渡可能時期 | 契約後3ヶ月 |
| 情報公開日 | 2026年03月21日 | 次回更新予定日 | 2026年04月04日 |