**便利で快適な暮らしが叶うフジ住宅の新築一戸建て「アイーナネオ」**
◆駐車3台分とお庭のある50坪超のゆとりの敷地!
◆経済的なオール電化(エコキュート)仕様!
◆南海本線「紀ノ川」駅徒歩8分、南海加太線「紀ノ川」駅徒歩8分!
◆楠見保育所まで徒歩5分、楠見西小学校まで徒歩9分!
◆徒歩10分以内に、スーパーやコンビニ、ホームセンターがあります!
◆住宅性能評価取得!耐震等級3!
◆フジ住宅の新築一戸建ては【ZEH水準省エネ住宅】だから「住宅ローン減税」の対象です!


























外観

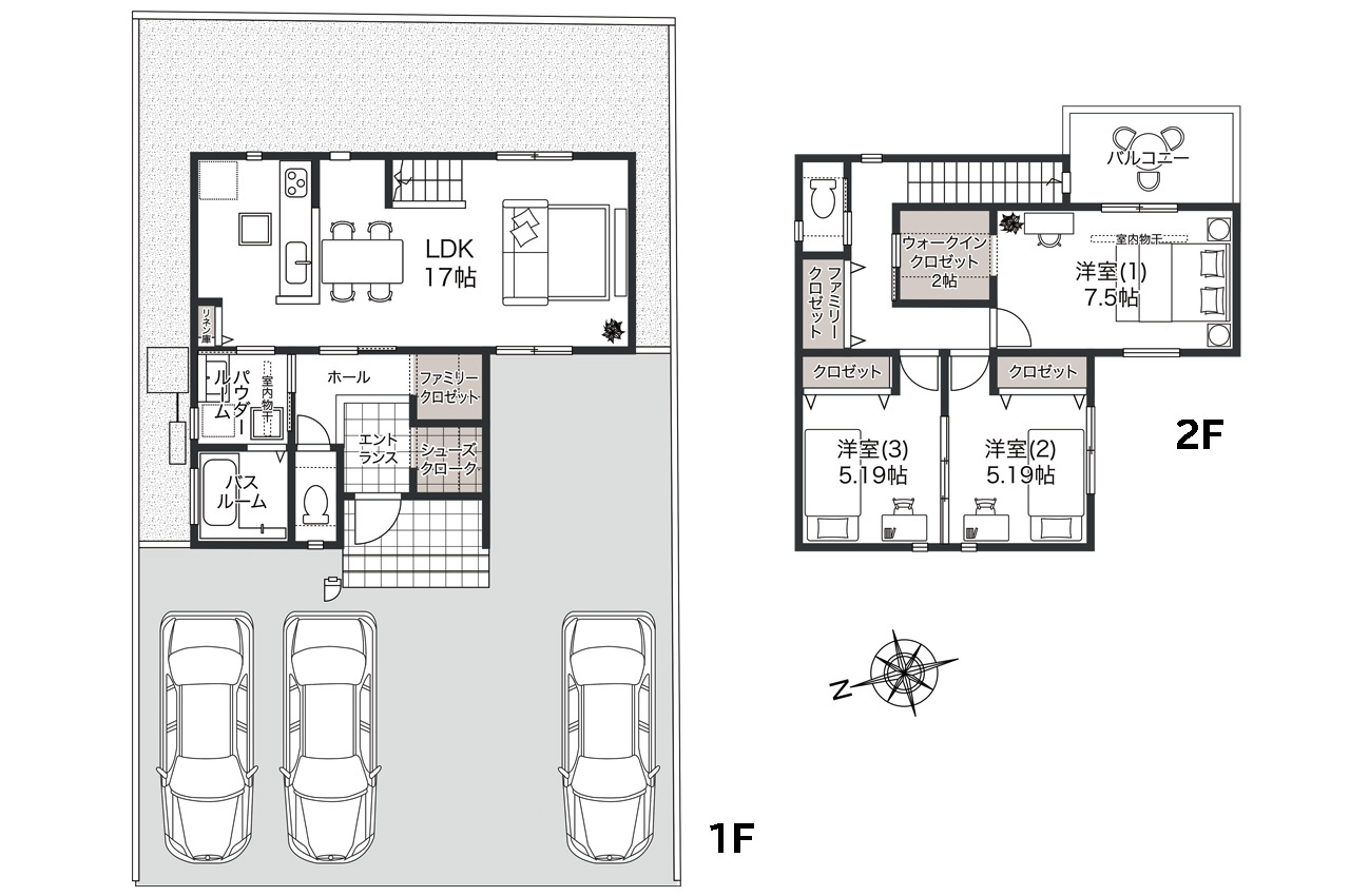
間取り図:3LDK+SC+WIC+2FC(家具・車の表記はイメージ配置になり、実際には付きません)

外観

外観

2号地:エネルギー消費性能 ★★★★(削減率30%達成)

間取り図:3LDK+SC+WIC+2FC(家具・車の表記はイメージ配置になり、実際には付きません)

【揺れに耐える耐震】地震や台風などの災害に強い「耐震等級3」を実現しました。

【揺れを吸収する制震】地震エネルギーを吸収する制震システム「TRCダンパー」を採用しています。

【FX-WOOD工法】柱材と壁面に強度を持たせ、耐震や気密性を両立させたフジ住宅独自の工法です。

【FX-BASEテクノロジー】フジ住宅独自のベタ基礎+高精度地盤調査で安心

【住まいの保証】第三者機関による「住宅性能評価」と「地盤保証制度」を採用。

お引渡し後、一定期間の不具合を無償で補修する安心の定期アフターサービスです。

2026年「オリコン顧客満足度調査建売住宅ビルダー」近畿第1位・近畿大阪府部門第1位を受賞しました。

楠見西小学校 (670m)

楠見保育所 (360m)

楠見中学校 (1,980m)

サンキョー楠見店 (240m)

オークワオーストリート和歌山バイパス店 (770m)

セブンイレブン和歌山楠見中西店 (670m)

DCMダイキ和歌山北バイパス店 (760m)

ジョーシン和歌山北店 (800m)

下間クリニック (410m)
| 価格 | 2820万円 | 間取り | 3LDK+WIC +SC+2FC |
|---|---|---|---|
| 所在地 | 和歌山県和歌山市市小路 | ||
| 交通 | 南海本線紀ノ川駅徒歩 8分 南海加太線紀ノ川駅徒歩 8分 |
||
| 土地権利 | 所有権 | 地目 | 宅地 |
| 土地面積 | 165.57㎡ (50.08坪) (公簿) | 建物面積 | 94.00㎡ (28.43坪) |
| 道路幅員 | 北西 4.00m | ||
| 私道負担 | 有 | 私道負担面積 | 20.00㎡ |
| 他面積 | - | ||
| 建物構造 | 木造 2階建 | 建築確認番号 | 第R07確認建築近確0000315号(2025年5月19日) |
| 総区画数 | 全2区画 | 販売戸数 | 1戸 |
| 建ぺい率 | 60% | 容積率 | 160% |
| 制限等 | 市街化区域 第一種住居地域 | ||
| 駐車スペース | 普通車3台 | ||
| 建築年月 | 2026年1月 | 改装年月 | - |
| 設備・特徴 | 電気 公営水道 オール電化(エコキュート) 個別浄化槽 新築一戸建て アフターサービス保証付 耐震等級3 駅近 買物便利 学校近し オール電化 IHコンロ LDK16帖以上 全居室洋室 収納多し 全居室収納あり ウォークインクロゼット シューズクローク ファミリークロゼット 複層ガラス 室内物干 トイレ2ヶ所 対面キッチン リビング階段 食洗機 浴室乾燥機 庭付き 駐車3台以上OK 土地広 | ||
| 費用等 | - | ||
| 特記事項 | 【私道負担部分】所在地:和歌山市市小路字神ノ木354番24、地目:公衆用道路 ①駐車台数は車種による制限あり。 ②実際に駐車可能かはお客様にて、現地でご確認をお願いいたします。 |
||
| 現況 | 完成済 | 取引条件有効期限 | 2026年02月07日 |
| 取引態様 | 売主 | 引渡可能時期 | 契約後3ヶ月 |
| 情報公開日 | 2026年01月24日 | 次回更新予定日 | 2026年02月07日 |