**便利で快適な暮らしが叶うフジ住宅の新築一戸建て「アイーナネオ」**
◆スムーズな生活動線と収納力を備えた快適設計!
◆家族の気配を感じやすいリビング階段の間取り!
◆洗濯物+αのスペースになるインナーバルコニー!
◆駐車2台分のスペースがあります!(車種による)!
◆南海本線「北助松」駅徒歩8分、南海本線急行停車「泉大津」駅徒歩23分!
◆スーパー、コンビニ、ドラッグストアが徒歩10分圏内です!
◆野球場やプール、テニスコートのある助松公園まで徒歩3分!
◆住宅性能評価取得!耐震等級3!
◆フジ住宅の新築一戸建ては【ZEH水準省エネ住宅】だから「住宅ローン減税」の対象です!

























外観

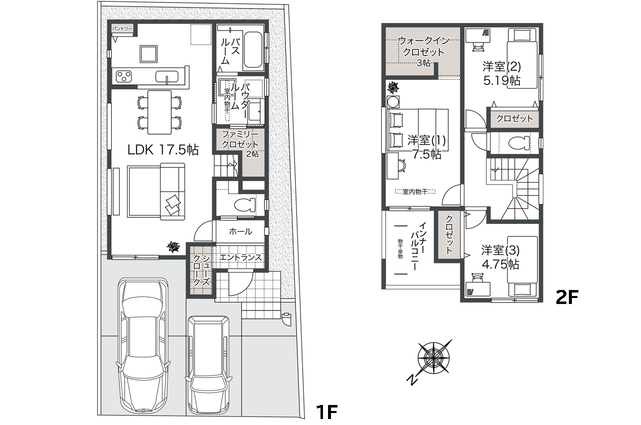
間取り図:3LDK+SC+WIC+FC(家具・車のイラストはイメージ)

LDK17.5帖

収納充実の3LDK:3LDK+SC+WIC+FC(家具・車のイラストはイメージ)

LDK:外からの視線が気にならず自然光も取り込める高窓を設置。

LDK:家族みんなで寛げるゆったりとした空間です。

リビングダイニング:リビングから駐車場へ出られます。

キッチン:食洗機付きシステムキッチン

キッチン:リビングを見渡しやすいオープンキッチン。お料理をしながら家族との会話を楽しめます。

キッチン:節水や家事の時短にもなる食洗機付きのキッチン。

パントリー:キッチン内に設置されたパントリーは食品や消耗品のストックに便利。

エントランス

シューズクローク:靴だけでなく、ベビーカーやレジャー用品などもすっきり収納可能。

パウダールーム:上部には便利な室内物干しを設置しています。

パウダールーム奥に配置されたファミリークロゼットは、タオルや日用品などの収納に便利。

バスルーム:浴室暖房乾燥機付きで毎日の入浴が快適に。

1階トイレ:便利な収納棚付き。

2階トイレ

洋室(1)7.5帖:グレーのアクセントクロスが落ち着いた空間を演出。

洋室(1)7.5帖:主寝室にぴったりのゆったりとしたお部屋です。

衣類や季節の家電などもすっきり収まる3帖大のウォークインクロゼット。お部屋を広く使えます。

洋室(2)5.19帖

洋室(3)4.75帖

洋室(3)クロゼット

インナーバルコニー:洋室(1)から出入りできます。

プライバシー性が高いインナーバルコニー。さらに水栓付きでお掃除や汚れ物の洗浄に便利。

1号地:エネルギー消費性能 ★★★(削減率20%達成)

【揺れに耐える耐震】地震や台風などの災害に強い「耐震等級3」を実現しました。

【揺れを吸収する制震】地震エネルギーを吸収する制震システム「TRCダンパー」を採用しています。

【FX-WOOD工法】柱材と壁面に強度を持たせ、耐震や気密性を両立させたフジ住宅独自の工法です。

【FX-BASEテクノロジー】フジ住宅独自のベタ基礎+高精度地盤調査で安心です。

【住まいの保証】第三者機関による「住宅性能評価」と「地盤保証制度」を採用。

お引渡し後、一定期間の不具合を無償で補修する安心の定期アフターサービスです。

2026年「オリコン顧客満足度調査建売住宅ビルダー」近畿第1位・近畿大阪府部門第1位を受賞しました。

上條小学校 (620m)

小津中学校 (260m)

かみじょう認定こども園 (470m)

アイビースクール(認定こども園) (1,370m)

条東こども園 (1,450m)

デイリーカナート北助松店 (770m)

万代泉大津条南店 (970m)

ウエルシア泉大津助松店 (340m)

デイリーヤマザキ泉大津助松店 (220m)

ファミリーマート泉大津北助松店 (600m)

セブンイレブン泉大津北助松駅前店 (730m)

原病院 (500m)

杉本クリニック (530m)

上條診療所 (780m)

助松公園 (220m)

泉大津市役所 (1,600m)
| 価格 | 3390万円 | 間取り | 3LDK+WIC +SC+FC |
|---|---|---|---|
| 所在地 | 大阪府泉大津市助松町3丁目 | ||
| 交通 | 南海本線北助松駅徒歩 8分 南海本線泉大津駅徒歩 23分 |
||
| 土地権利 | 所有権 | 地目 | 宅地 |
| 土地面積 | 98.25㎡ (29.72坪) (公簿) | 建物面積 | 91.93㎡ (27.80坪) |
| 道路幅員 | 北西 4.00m | ||
| 私道負担 | 有 | 私道負担面積 | 0.60㎡ |
| 他面積 | - | ||
| 建物構造 | 木造 2階建 | 建築確認番号 | R07確認建築近確0000790号(2025年7月3日) |
| 総区画数 | 全2区画 | 販売戸数 | 1戸 |
| 建ぺい率 | 60% | 容積率 | 160% |
| 制限等 | 市街化区域 第一種中高層住居専用地域 | ||
| 駐車スペース | 普通車1台 軽自動車1台 | ||
| 建築年月 | 2025年11月 | 改装年月 | - |
| 設備・特徴 | 電気 公営水道 都市ガス 公共下水 新築一戸建て アフターサービス保証付 インナーバルコニー 耐震等級3 駅近 買物便利 学校近し 公園近く LDK16帖以上 全居室洋室 収納多し 全居室収納あり ウォークインクロゼット シューズクローク ファミリークロゼット パントリー 複層ガラス 室内物干 トイレ2ヶ所 対面キッチン リビング階段 食洗機 浴室乾燥機 普通車1台軽1台OK | ||
| 費用等 | - | ||
| 特記事項 | ①駐車台数は車種による制限あり。 ②実際に駐車可能かはお客様にて、現地でご確認をお願いいたします。 | ||
| 現況 | 完成済 | 取引条件有効期限 | 2026年03月19日 |
| 取引態様 | 売主 | 引渡可能時期 | 契約後3ヶ月 |
| 情報公開日 | 2026年03月05日 | 次回更新予定日 | 2026年03月19日 |