**快適な暮らしを実現するフジ住宅の新築一戸建「アイーナネオ」**
◆住宅性能評価取得!耐震等級3!
◆経済的なオール電化(エコキュート)仕様!
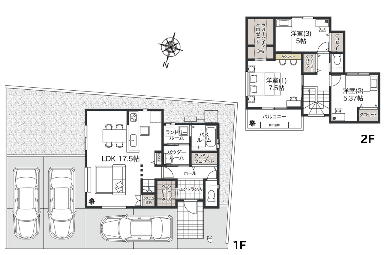
◆エントランスのシューズクロークで、すっきりスマートな空間に!
◆家族みんなで使えるファミリークロゼットが2ヶ所あり!
◆お部屋を広く使える主寝室のウォークインクロゼット!
◆駐車3台分のスペースを確保(車種による)!
◆心地よい家族のつながりと、快適なプライベート空間を大切にする間取りです♪
◆フジ住宅の新築一戸建ては【ZEH水準省エネ住宅】だから「住宅ローン減税」の対象です!
◆資金計画が立てやすい外構工事費・税込みの価格です!

























BELSとは第3者評価機関が評価し認定した『建築物省エネルギー性能』をわかりやすく表示したものです。

間取り図:3LDK+SC+WIC+2FC(家具・車の表記はイメージ配置になり、実際には付きません)

収納充実の3LDK+SC+WIC+2FC(家具・車の表記はイメージ配置になり、実際には付きません)

【揺れに耐える耐震】地震や台風などの災害に強い「耐震等級3」を実現しました。

【揺れを吸収する制震】地震エネルギーを吸収する制震システム「TRCダンパー」を採用しています。

【FX-WOOD工法】柱材と壁面に強度を持たせ、耐震や気密性を両立させたフジ住宅独自の工法です。

【FX-BASEテクノロジー】フジ住宅独自のベタ基礎+高精度地盤調査で安心です。

【住まいの保証】第三者機関による「住宅性能評価」と「地盤保証制度」を採用。

お引渡し後、一定期間の不具合を無償で補修する安心の定期アフターサービスです。

2026年「オリコン顧客満足度調査建売住宅ビルダー」近畿第1位・近畿大阪府部門第1位を受賞しました。

宮前小学校 (880m)

東和中学校 (760m)

杭ノ瀬保育所 (700m)

スーパーエバグリーン宮前店 (120m)

ファミリーマート和歌山南出島店 (380m)

エバーグリーン新中島店 (480m)

業務スーパー神前店 (900m)

ジョーシン和歌山店 (640m)

道浦クリニック (1,110m)

JAわかやま宮前支店 (250m)

和歌山杭ノ瀬郵便局 (770m)

紀陽銀行神前支店 (1,450m)

和歌山東公園 (780m)

和歌山ビッグホエール (1,100m)
| 価格 | 3490万円 | 間取り | 3LDK+WIC +2FC+SC |
|---|---|---|---|
| 所在地 | 和歌山県和歌山市中島 | ||
| 交通 | JR紀勢本線宮前駅徒歩 8分 和歌山電鐵貴志川線神前駅徒歩 17分 |
||
| 土地権利 | 所有権 | 地目 | 宅地 |
| 土地面積 | 149.49㎡ (45.22坪) (公簿) | 建物面積 | 96.69㎡ (29.24坪) |
| 道路幅員 | 北 4.35m | ||
| 私道負担 | 無 | 私道負担面積 | - |
| 他面積 | - | ||
| 建物構造 | 木造 2階建 | 建築確認番号 | 第R07確認建築近確0002074号(2025年10月28日) |
| 総区画数 | 全2区画 | 販売戸数 | 1戸 |
| 建ぺい率 | 60% | 容積率 | 174% |
| 制限等 | 市街化区域 第一種住居地域 | ||
| 駐車スペース | 普通車3台 | ||
| 建築年月 | 2026年2月 | 改装年月 | - |
| 設備・特徴 | 公営水道 オール電化(エコキュート) 個別浄化槽 新築一戸建て アフターサービス保証付 耐震等級3 駅近 買物便利 公園近く IHコンロ LDK16帖以上 全居室洋室 収納多し 全居室収納あり ウォークインクロゼット シューズクローク ファミリークロゼット パントリー 複層ガラス トイレ2ヶ所 対面キッチン リビング階段 食洗機 浴室乾燥機 庭付き 駐車3台以上OK 土地広 | ||
| 費用等 | - | ||
| 特記事項 | ①駐車台数は車種による制限あり。 ②実際に駐車可能かはお客様にて、現地でご確認をお願いいたします。 | ||
| 現況 | 完成済 | 取引条件有効期限 | 2026年04月07日 |
| 取引態様 | 売主 | 引渡可能時期 | 契約後3ヶ月 |
| 情報公開日 | 2026年03月24日 | 次回更新予定日 | 2026年04月07日 |