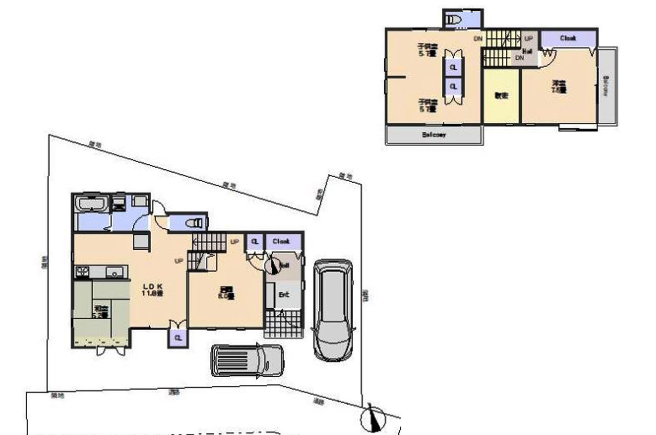
ロフトのある4LDK!
敷地はゆとりの45.37坪!
駐車2台可能(車種による)!1台分のカーポート付き!
オール電化住宅!
各居室がステップフロアになっています!












| 価格 | 1780万円 | 間取り | 4LDK |
|---|---|---|---|
| 所在地 | 大阪府和泉市王子町 | ||
| 交通 | JR阪和線北信太駅徒歩 18分 |
||
| 土地権利 | 所有権 | 地目 | 宅地 |
| 土地面積 | 150.00㎡ (45.37坪) (公簿) | 建物面積 | 100.53㎡ (30.41坪) |
| 私道負担 | 無 | 私道面積 | - |
| 他面積 | - | ||
| 建物構造 | 木造 2階建 | ||
| 建ぺい率 | 50% | 容積率 | 100% |
| 制限等 | 市街化区域 第一種低層住居専用地域 | ||
| 駐車スペース | 普通車1台 軽自動車1台 | ||
| 建築年月 | 2005年4月 | 改装年月 | - |
| 設備・特徴 | 公営水道 オール電化 浄化槽 IHコンロ ゆとりの4LDK 駐車2台OK リビング階段 トイレ2ヶ所 学校近し 日当良好 土地広 シューズクローク 吹抜 ロフト カーポート | ||
| 費用等 | - | ||
| 特記事項 | ※売主契約不適合責任免責 ①駐車台数は車種による制限あり。 ②実際に駐車可能かはお客様にて、現地でご確認をお願いいたします。 |
||
| 現況 | 居住中 | ||
| 取引態様 | 仲介 | 引渡可能時期 | 相談 |
| 情報公開日 | 2025年11月22日 | 次回更新予定日 | 2025年12月06日 |