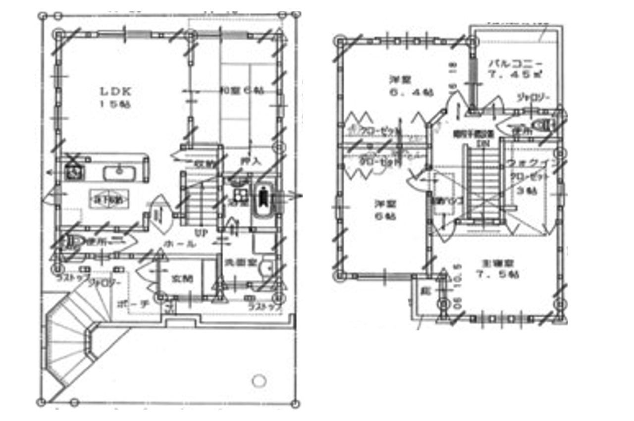
全居室6帖以上のゆったり4LDK!
閑静な住宅地です!
家族が集まるLDKは広々15帖!
2階にはウォークインクローゼットあり!
車種により駐車1台OK!












| 価格 | 1980万円 | 間取り | 4LDK |
|---|---|---|---|
| 所在地 | 大阪府和泉市池田下町 | ||
| 交通 | 南海泉北線光明池駅徒歩 16分 |
||
| 土地権利 | 所有権 | 地目 | 宅地 |
| 土地面積 | 100.03㎡ (30.25坪) (公簿) | 建物面積 | 105.36㎡ (31.87坪) (登記) |
| 私道負担 | 無 | 私道負担面積 | - |
| 他面積 | - | ||
| 建物構造 | 木造 2階建 | ||
| 建ぺい率 | 70% | 容積率 | 200% |
| 制限等 | 市街化区域 準工業地域 | ||
| 駐車スペース | 普通車1台 | ||
| 建築年月 | 2003年7月 | 改装年月 | - |
| 設備・特徴 | 全居室収納あり ゆとりの4LDK 即引渡可 駐車スペースあり トイレ2ヶ所 全居室6帖以上 学校近し 閑静な住宅地 前面道路6m以上 カウンターキッチン 勝手口あり ウォークインクローゼット | ||
| 費用等 | - | ||
| 特記事項 | ・現状引き渡し ・売主瑕疵担保責任免責 ①駐車台数は車種による制限あり。 ②実際に駐車可能かはお客様にて、現地でご確認をお願いいたします。 |
||
| 現況 | 空家 | ||
| 取引態様 | 仲介 | 引渡可能時期 | 即時 |
| 情報公開日 | 2026年04月21日 | 次回更新予定日 | 2026年05月05日 |