◆令和7年10月リフォーム!和×モダンをテーマに設備・内装を一新!
・浴室交換(浴乾・追い焚き付き)
・システムキッチン、トイレ、洗面化粧台交換
・全室クロス貼替え・CF貼替え(トイレ、洗面、玄関)
・フロアタイル新調(リビング、廊下)
・琉球畳新設・襖貼替え
・モニターホン、電気スイッチ、給湯器交換
◆すぐにご入居いただける状態でお引き渡し!
◆階段の昇降の少ない2階部分!








ライオンズマンション泉北忠岡 外観



エントランスホール

エントランス

東忠岡小学校 (1,460m)

忠岡中学校 (2,300m)

イオン和泉府中店 (1,200m)

ウエルシア和泉和気店 (420m)

村田内科 (450m)
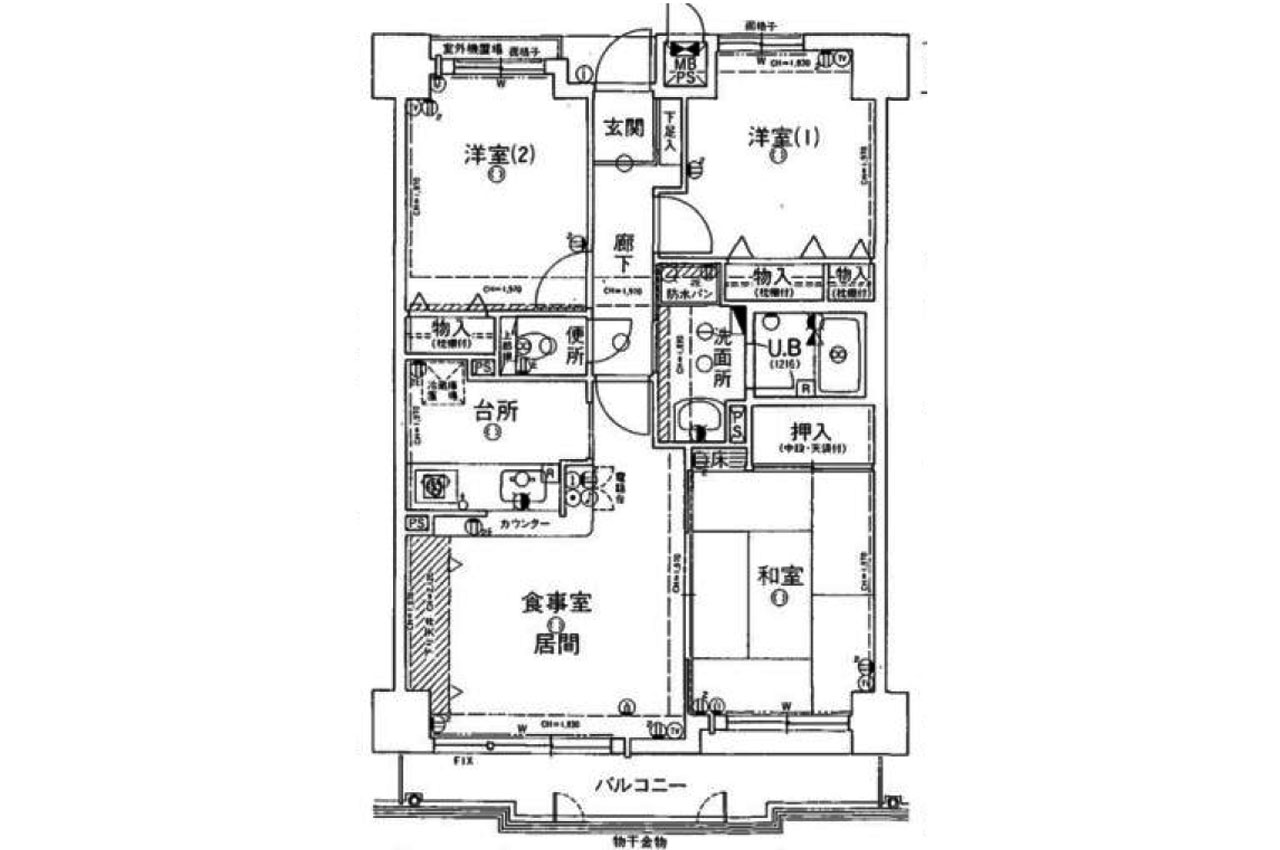
| 価格 | 1250万円 | 間取り | 3LDK |
|---|---|---|---|
| 所在地 | 大阪府泉北郡忠岡町高月北1丁目 | ||
| 交通 | JR阪和線和泉府中駅徒歩 20分 南海本線忠岡駅徒歩 30分 |
||
| 土地権利 | 所有権 | ||
| 専有面積 | 68.75㎡(壁芯) | 総戸数 | 55戸 |
| バルコニー面積 | 8.40㎡ | バルコニー向き | 南西 |
| 他面積 | - | ||
| 構造 | RC 8階建 2階部分 | ||
| 管理費 | 12,800円 | 修繕積立金 | 10,360円 |
| 管理形態 | 全部委託 | 管理人 | 日勤 |
| 建築年月 | 1992年2月 | 改装年月 | 2025年10月 |
| 改装内容 | 内装壁 内装床 キッチン トイレ 浴室 洗面所 その他 | ||
| 設備・特徴 | 電気 公営水道 都市ガス 公共下水 全居室収納あり 駐輪場 バイク置場 快速停車駅 浴室乾燥機 カウンターキッチン オートロック | ||
| 費用等 | - | ||
| 特記事項 | ※本物件敷地一部には送電線に関する地役権設定あり(59.74㎡)。 |
||
| 現況 | 空家 | ||
| 取引態様 | 仲介 | 引渡可能時期 | 相談 |
| 情報公開日 | 2025年12月06日 | 次回更新予定日 | 2025年12月20日 |