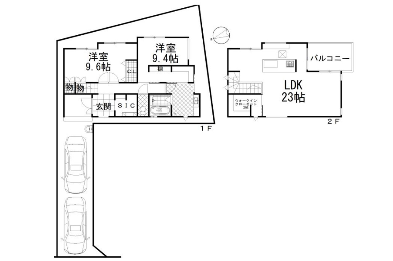
23帖の広々LDKが魅力!
ゆったりとした2LDKの間取り!
3帖のウォークインクローゼットが付いた2階リビング!
1階9.6帖の洋室は、仕切り設置で2部屋に間取り変更可能!
車種により駐車2台OK!
令和7年12月室内リフォーム(クロス一部貼替・洗面化粧台交換、他)!












外観



LDK

ペニンシュラキッチン

バスルーム

洗面室

トイレ

玄関・シューズインクローゼット

洋室9.6帖

信達小学校 (1,520m)

鳴滝小学校 (1,440m)

信達中学校 (2,560m)

泉南中学校 (1,680m)

ラ・ムー泉南北野店 (1,360m)

ファミリーマート泉南信達大苗代店 (1,070m)

泉南大阪晴愛病院 (670m)
| 価格 | 1890万円 | 間取り | 2LDK |
|---|---|---|---|
| 所在地 | 大阪府泉南市中小路2丁目 | ||
| 交通 | 南海本線岡田浦駅徒歩 23分 JR阪和線和泉砂川駅徒歩 26分 |
||
| 土地権利 | 所有権 | 地目 | 宅地 |
| 土地面積 | 129.83㎡ (39.27坪) (公簿) | 建物面積 | 104.75㎡ (31.68坪) |
| 私道負担 | 無 | 私道負担面積 | - |
| 他面積 | - | ||
| 建物構造 | 木造 2階建 | ||
| 建ぺい率 | 60% | 容積率 | 200% |
| 制限等 | 市街化区域 準工業地域 路地状 | ||
| 駐車スペース | 普通車2台 | ||
| 建築年月 | 2019年4月 | 改装年月 | 2025年12月 |
| 改装内容 | 内装壁 洗面所 その他 | ||
| 設備・特徴 | 電気 公営水道 都市ガス 浄化槽 LDK16帖以上 改装済 即引渡可 駐車2台OK リビング階段 2階リビング 全居室6帖以上 前面道路6m以上 ペニンシュラキッチン ウォークインクローゼット シューズインクローゼット | ||
| 費用等 | - | ||
| 特記事項 | ①駐車台数は車種による制限あり。 ②実際に駐車可能かはお客様にて、現地でご確認をお願いいたします。 | ||
| 現況 | 空家 | ||
| 取引態様 | 仲介 | 引渡可能時期 | 即時 |
| 情報公開日 | 2026年04月21日 | 次回更新予定日 | 2026年05月05日 |