◆2025年1月築!未入居一戸建て!
◆コンパクトでスリムな心地よい生活動線!
◆パウダールームと2階廊下には昇降式室内物干を設置!
◆家族と顔を合わせやすいリビング階段の間取りです!
◆家族みんなで共有できる2階廊下に設置されたファミリークロゼット!
◆普通車1台分の駐車スペースあり!
◆住宅性能評価取得!耐震等級3!



















外観

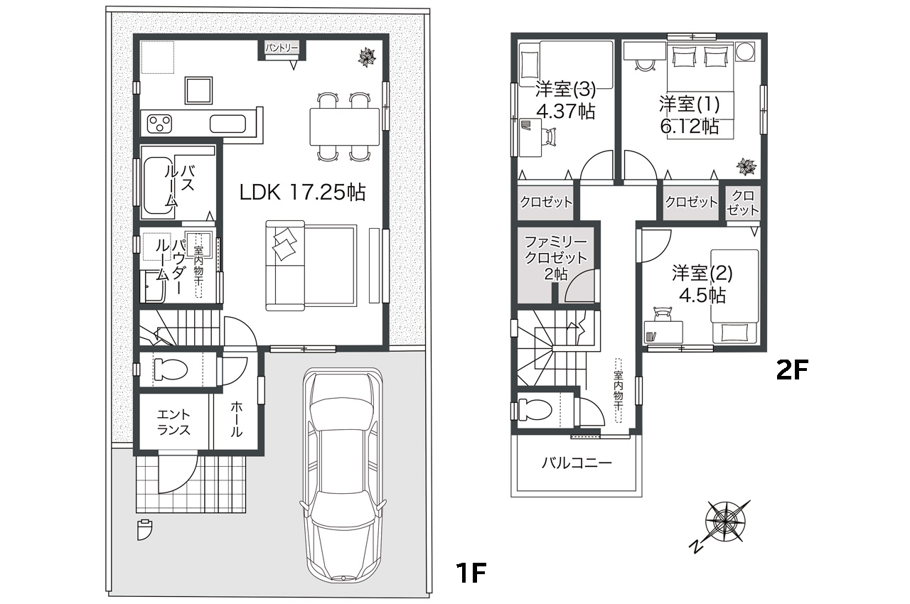
間取り図(家具・車の表記はイメージ配置になり、実際には付きません)

バーチャルステージング(実際には家具はついていません)

コンパクトでスリムな心地よい間取り(家具・車の表記はイメージ配置になり、実際には付きません)

LDK(実際の室内写真)

家族が集うLDKはゆとりの17.25帖。

17.25帖のLDK。家族の団らんや来客にも対応できるスペースです。

自然と家族が顔を合わせる機会が増えるリビング階段の間取り。家族間の会話も増えます。

自然と家族が集まりたくなるLDK。心地よい空間が家族の団らんの時間を育みます。

清潔感のあるホワイトカラーのシステムキッチンです。

キッチンは、手洗いよりキレイに洗えて節水や時短にもなるうれしい食洗機付き。

お菓子や軽食などまとめて収納できるキッチン内のパントリー。すっきり片付いて、スペースを広く使えます。

キッチン内の床下収納。缶詰や調味料などのストックに便利です。

エントランスホール

パウダールーム

パウダールーム内にも便利な床下収納があります。

パウダールームには、お天気に関係なくお洗濯が干せる昇降式の室内物干(ホスクリーン)付き。

浴乾付きのバスルーム

1階トイレ

2階ホールからバルコニーへ出入り可能。お部屋を介さずお洗濯物が干せます。

2階トイレ

2階ホールのファミリークロゼット。家族みんなの衣類や荷物をまとめて収納できます。

6.12帖の洋室(1)。家具などを設置しやすいゆったりとしたお部屋です。

洋室(1)は主寝室にぴったりのお部屋です。

洋室(1)のクロゼット

4.5帖の洋室(2)。子供部屋におすすめのコンパクトなお部屋です。

洋室(2)

洋室(2)のクロゼット

4.37帖の洋室(3)。子供部屋や書斎としても使えます。

洋室(3)

洋室(3)クロゼット

バルコニー

BELSとは第3者評価機関が評価し認定した『建築物省エネルギー性能』をわかりやすく表示したものです。

【揺れに耐える耐震】地震や台風などの災害に強い「耐震等級3」を実現しました。

【揺れを吸収する制震】地震エネルギーを吸収する制震システム「TRCダンパー」を採用しています。

【FX-WOOD工法】柱材と壁面に強度を持たせ、耐震や気密性を両立させたフジ住宅独自の工法です。

【FX-BASEテクノロジー】フジ住宅独自のベタ基礎+高精度地盤調査で安心です。

【住まいの保証】第三者機関による「住宅性能評価」と「地盤保証制度」を採用。

お引渡し後、一定期間の不具合を無償で補修する安心の定期アフターサービスです。

2025年「オリコン顧客満足度調査建売住宅ビルダー」近畿第1位・近畿大阪府部門第1位を受賞しました。

八木南小学校 (610m)

久米田中学校 (1,170m)

八木南幼稚園 (540m)

コープ久米田店 (400m)

サンディ久米田店 (710m)

サンエー久米田店 (800m)

サンエー上松店 (820m)

セブンイレブン岸和田額原町店 (630m)

セブンイレブン岸和田小松里町店 (670m)

ファミリーマート久米田駅前店 (770m)

おおしま内科 (220m)

かめい内科診療所 (690m)

岸和田市民病院 (720m)

岸和田小松里郵便局 (630m)

小松里町山ノ下児童遊園 (20m)

小松里町山ノ下児童遊園 (20m)

久米田池 (1,290m)

中央公園 (1,300m)
| 価格 | 2490万円 | 間取り | 3LDK +FC |
|---|---|---|---|
| 所在地 | 大阪府岸和田市小松里町 | ||
| 交通 | JR阪和線久米田駅徒歩 10分 JR阪和線下松駅徒歩 11分 |
||
| 土地権利 | 所有権 | 地目 | 宅地 |
| 土地面積 | 89.49㎡ (27.07坪) (公簿) | 建物面積 | 85.72㎡ (25.93坪) |
| 道路幅員 | 北西 4.70m | ||
| 私道負担 | 無 | 私道負担面積 | - |
| 他面積 | - | ||
| 建物構造 | 木造 2階建 | 建築確認番号 | 第R06確認建築近確0001420号(2024年9月10日) |
| 総区画数 | 全1区画 | 販売戸数 | 1戸 |
| 建ぺい率 | 60% | 容積率 | 188% |
| 制限等 | 市街化区域 第一種住居地域 準防火地域 | ||
| 駐車スペース | 普通車1台 | ||
| 建築年月 | 2025年1月 | 改装年月 | - |
| 設備・特徴 | 電気 公営水道 都市ガス 公共下水 アフターサービス保証付 築後未入居 耐震等級3 駅近 買物便利 学校近し 公園近く 全居室洋室 全居室収納あり ファミリークロゼット 複層ガラス 室内物干 トイレ2ヶ所 対面キッチン リビング階段 食洗機 浴室乾燥機 駐車場あり | ||
| 費用等 | - | ||
| 特記事項 | ※土地面積には隣地越境等による建確申請外面積3.4m2を含む。 ①駐車台数は車種による制限あり。 ②実際に駐車可能かはお客様にて、現地でご確認をお願いいたします。 |
||
| 現況 | 空家 | 取引条件有効期限 | 2026年02月07日 |
| 取引態様 | 売主 | 引渡可能時期 | 契約後3ヶ月 |
| 情報公開日 | 2026年01月24日 | 次回更新予定日 | 2026年02月07日 |