**快適な暮らしを叶えるフジ住宅の新築一戸建て「アイーナネオ」**
◆家中の空気をクリーンに保つ「炭の家」!
◆空間をすっきりと整えるシューズクローク付きのエントランス!
◆家族と顔を合わせやすいリビング階段の間取り!
◆パウダールームと2階主寝室には昇降式室内物干を設置!
◆3帖の大型ウォークインクロゼットがゆとりある主寝室を演出!
◆住宅性能評価取得!耐震等級3!
◆フジ住宅の新築一戸建ては【ZEH水準省エネ住宅】だから「住宅ローン減税」の対象です!
◆安心の外構工事費・税込みの価格です!























アイーナネオ松原天美東2号地 外観

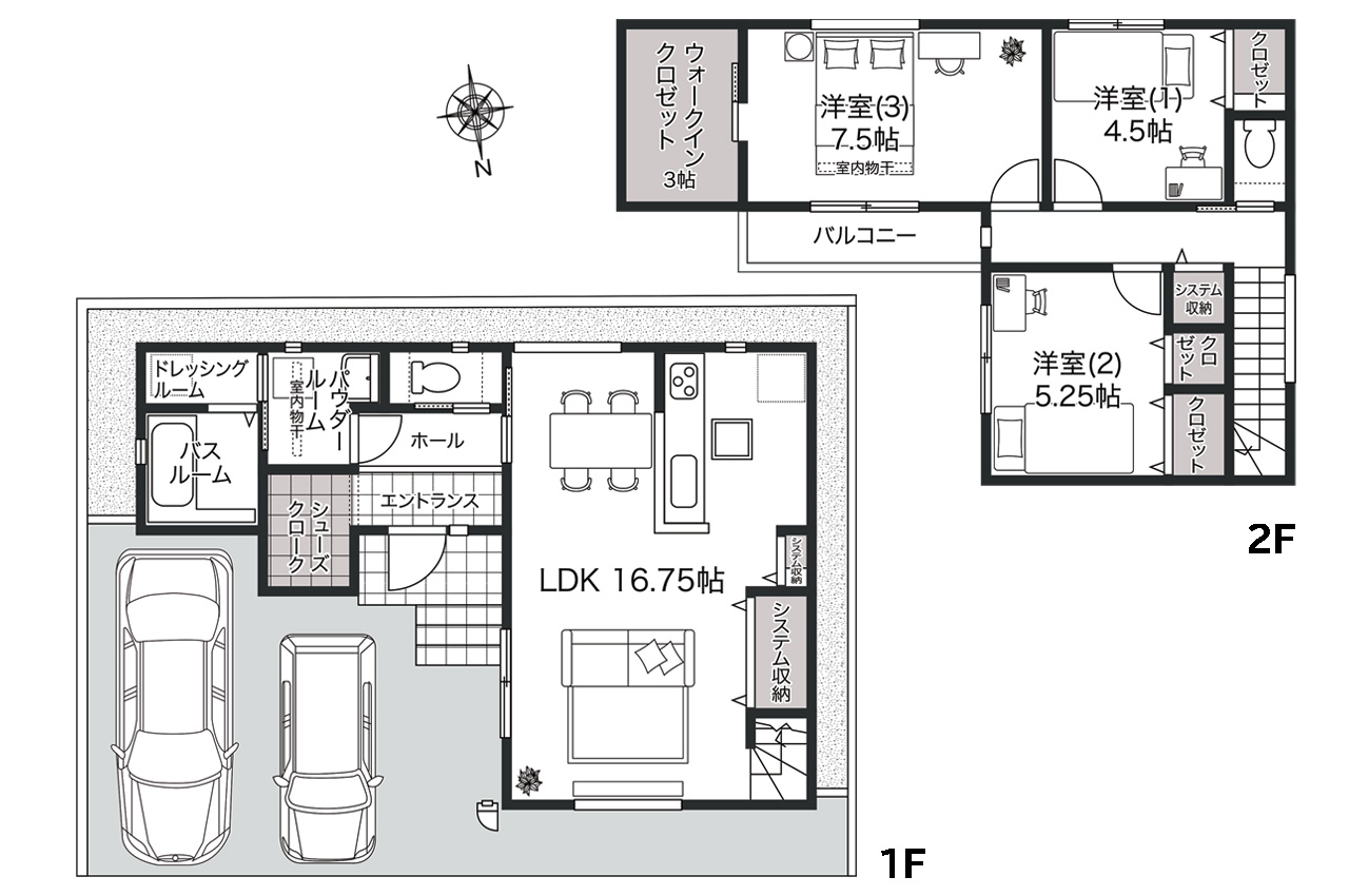
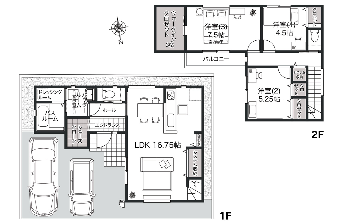
間取り図(家具・車の表記はイメージ配置になり、実際には付きません)

16.75帖のゆったりLDKは、家族が自然と顔を合わせる機会が増えるリビング階段の間取りです。

三面採光で明るく開放的なLDK。リビングとダイニングをしっかり分けて使えるレイアウトです。

充実の収納ですっきり暮らせる家(家具・車の表記はイメージ配置になり、実際には付きません)

充実の収納スペースですっきりと片付けやすいLDK。家族が自然と集まる心地よい空間です。

スタイリッシュな食洗機付きのシステムキッチン。お料理をしながら家族との会話も楽しめる対面式です。

開放感たっぷりのエントランス。大容量のシューズクロークで、すっきりきれいな空間を保ちます。

靴以外にも、ベビーカーやアウトドアグッズなどもすっきり収まる広々としたシューズクローク。

パウダールーム。室内物干(ホスクリーン)付きです。

バスルームは浴室暖房乾燥機付き。ゆったりと寛いでいただけます。

1階トイレ

4.5帖の洋室(1)。子供部屋や書斎などにぴったりのコンパクトなお部屋です。

5.25帖の洋室(2)。2ヶ所のクロゼットを備えた片付けがしやすいお部屋です。

7.5帖の洋室(3)。ゆとりと収納を兼ね備えた、主寝室にぴったりのお部屋です。

3帖の広々ウォークインクロゼット。衣類や季節物もすっきりと収まる充実の収納力です。

【炭の家/ピュアエア】炭+PM2.5対応フィルターで、家中の空気をクリーンに保ちます。

【揺れに耐える耐震】地震や台風などの災害に強い「耐震等級3」を実現しました。

BELSとは第3者評価機関が評価し認定した『建築物省エネルギー性能』をわかりやすく表示したものです。

【揺れを吸収する制震】地震エネルギーを吸収する制震システム「TRCダンパー」を採用しています。

【FX-WOOD工法】柱材と壁面に強度を持たせ、耐震や気密性を両立させたフジ住宅独自の工法です。

【FX-BASEテクノロジー】フジ住宅独自のベタ基礎+高精度地盤調査で安心です。

【住まいの保証】第三者機関による「住宅性能評価」と「地盤保証制度」を採用。

2025年「オリコン顧客満足度調査建売住宅ビルダー」近畿第1位・近畿大阪府部門第1位を受賞しました。

お引渡し後、一定期間の不具合を無償で補修する安心の定期アフターサービスです。

天美小学校 (450m)

松原第五中学校 (1,290m)

近商ストア天美店 (370m)

万代天美店 (580m)

セブンパーク天美 (1,050m)

ファミリーマート近鉄河内天美駅前店 (350m)

マツモトキヨシ河内天美店 (450m)

松原徳洲会病院 (260m)

近鉄南大阪線 河内天美駅 (370m)

りそな銀行河内松原支店天美出張所 (410m)

池田泉州銀行松原支店 (410m)

天美図書館 (140m)
\動画でご紹介!ルームツアー/
| 価格 | 3980万円 | 間取り | 3LDK+WIC +SC |
|---|---|---|---|
| 所在地 | 大阪府松原市天美東8丁目 | ||
| 交通 | 近鉄南大阪線河内天美駅徒歩 5分 大阪メトロ御堂筋線北花田駅徒歩 26分 |
||
| 土地権利 | 所有権 | 地目 | 宅地 |
| 土地面積 | 99.76㎡ (30.17坪) (公簿) | 建物面積 | 93.17㎡ (28.18坪) |
| 道路幅員 | 北 6.78m | ||
| 私道負担 | 無 | 私道面積 | - |
| 他面積 | - | ||
| 建物構造 | 木造 2階建 | 建築確認番号 | 第R06確認建築近確0002484号(2024年12月11日) |
| 総区画数 | 全2区画 | 販売戸数 | 1戸 |
| 建ぺい率 | 60% | 容積率 | 200% |
| 制限等 | 市街化区域 第一種住居地域 準防火地域 | ||
| 駐車スペース | 普通車1台 軽自動車1台 | ||
| 建築年月 | 2025年5月 | 改装年月 | - |
| 設備・特徴 | 電気 公営水道 都市ガス 公共下水 新築一戸建て アフターサービス保証付 炭の家 耐震等級3 駅近 買物便利 学校近し LDK16帖以上 全居室洋室 収納多し 全居室収納あり ウォークインクロゼット シューズクローク 複層ガラス 室内物干 トイレ2ヶ所 対面キッチン リビング階段 食洗機 浴室乾燥機 普通車1台軽1台OK 前面道路6m以上 | ||
| 費用等 | - | ||
| 特記事項 | ※土地面積には隣地越境による建確申請外面積0.84m2を含む。 ①駐車台数は車種による制限あり。 ②実際に駐車可能かはお客様にて、現地でご確認をお願いいたします。 |
||
| 現況 | 完成済 | 取引条件有効期限 | 2025年12月06日 |
| 取引態様 | 売主 | 引渡可能時期 | 契約後3ヶ月 |
| 情報公開日 | 2025年11月22日 | 次回更新予定日 | 2025年12月06日 |