= Price ============
プライスダウン!!
=========== Down =
**便利で快適な暮らしを実現するフジ住宅の新築一戸建て「アイーナネオ」**
◆限定1区画です!
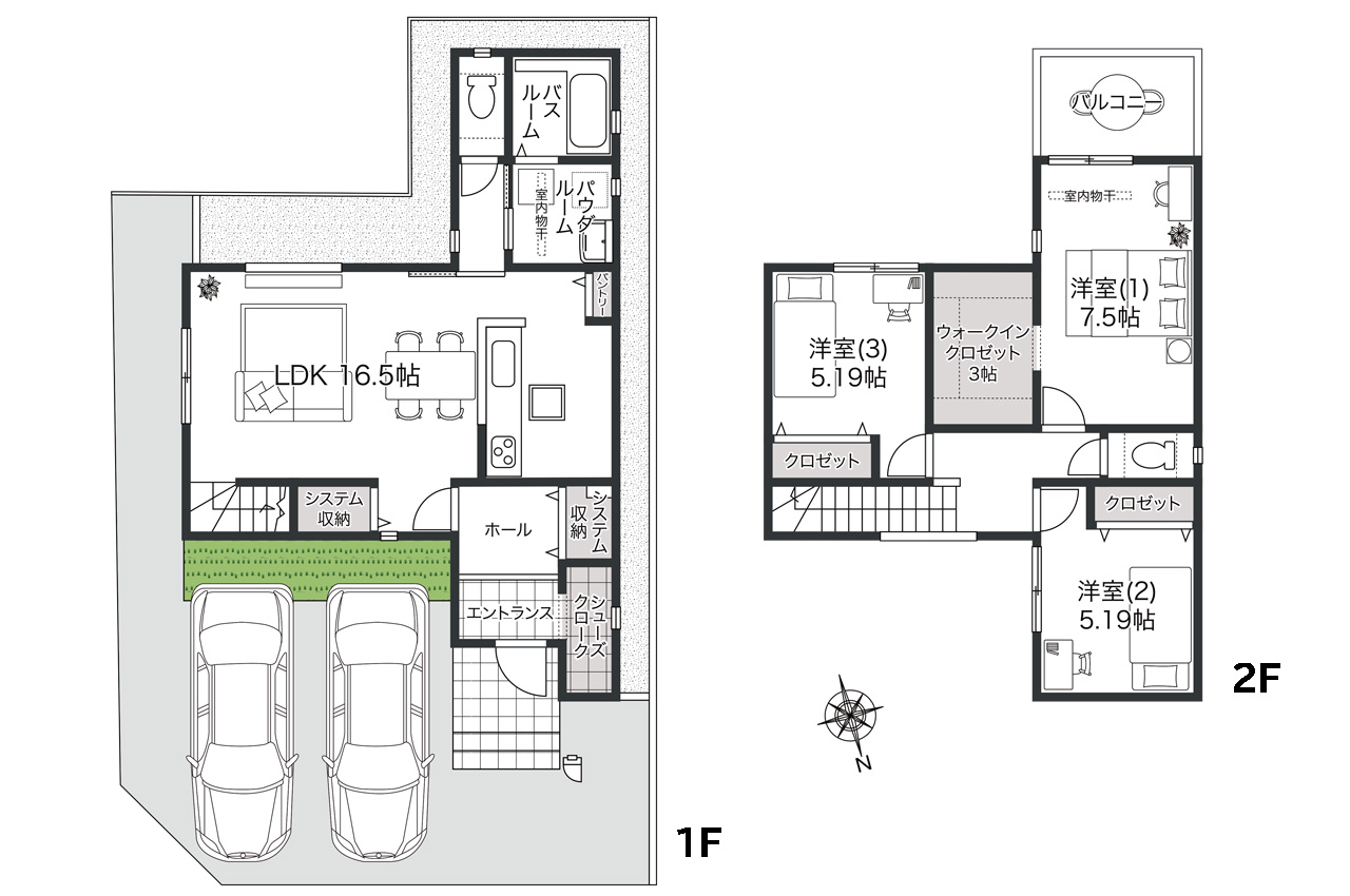
◆エントランス周りをスッキリ保つシューズクローク+システム収納!
◆家族が自然と集まりたくなるリビング階段の間取り!
◆主寝室には3帖の大型ウォークインクロゼットを設置!
◆普通車2台分の駐車スペースあり!
◆住宅性能評価取得!耐震等級3!
◆フジ住宅の新築一戸建ては【ZEH水準省エネ住宅】だから「住宅ローン減税」の対象です!
◆安心の外構工事費・税込みの価格です!





















間取り図(家具・車・植栽の表記はイメージ配置になり、実際には付きません)

外観

バーチャルステージング(実際には家具はついていません)

すっきりとした快適空間を叶える間取り(家具・車・植栽の表記はイメージ配置になり、実際には付きません)

リビングダイニング(実際の室内写真)

普通車2台分の駐車スペースがあります。

外観

16.5帖のLDK。家族がゆったりと寛げる開放的な空間です。

プライバシーに配慮した高窓付きのリビング。高い位置にあることで、自然光をたっぷり取込みます。

家族間コミュニケーションがとりやすいリビング階段の間取りです。

リビング内に設置された奥行きのあるシステム収納

リビングを見渡しやすいすっきりとしたオープンタイプのキッチン。

お料理をしながら、家族との会話が楽しめます。

忙しい家事の時短にも役立ち、節水にもなる食洗機付きのシステムキッチン。

キッチン内に設置されたパントリー。保存食やお菓子、消耗品などたっぷり収納可能です。

キッチン内の床下収納。調味料などのストックに便利です。

靴以外にもベビーカーなど嵩張る物も収納できるシューズクローク付きのエントランス

窓付きで明るく、風通りも良いシューズクローク

玄関ホールに設置されたシステム収納

パウダールーム

パウダールーム内の昇降式室内物干(ホスクリーン)

浴室暖房乾燥機付きのバスルーム

1階トイレ

2階トイレ

7.5帖の洋室(1)。バルコニーに面した明るく開放的なお部屋です。

ウォークインクロゼット付きの洋室(1)。主寝室におすすめのゆったりとしたお部屋です。

3帖のウォークインクロゼット。衣類以外にも、季節の家電や大物もすっきり収納できるスペースです。

洋室(1)にも室内物干を設置。お天気や時間帯に関係なくお洗濯物が干せて便利です。

洋室(1)から出入りできるバルコニー

5.19帖の洋室(2)

洋室(2)。ワイドなクロゼット付きです。

5.19帖の洋室(3)

洋室(3)も、ワイドなクロゼット付きです。

BELSとは第3者評価機関が評価し認定した『建築物省エネルギー性能』をわかりやすく表示したものです。

【揺れに耐える耐震】地震や台風などの災害に強い「耐震等級3」を実現しました。

【揺れを吸収する制震】地震エネルギーを吸収する制震システム「TRCダンパー」を採用しています。

【FX-WOOD工法】柱材と壁面に強度を持たせ、耐震や気密性を両立させたフジ住宅独自の工法です。

【住まいの保証】第三者機関による「住宅性能評価」と「地盤保証制度」を採用。

【FX-BASEテクノロジー】フジ住宅独自のベタ基礎+高精度地盤調査で安心です。

お引渡し後、一定期間の不具合を無償で補修する安心の定期アフターサービスです。

2025年「オリコン顧客満足度調査建売住宅ビルダー」近畿第1位・近畿大阪府部門第1位を受賞しました。

中央小学校 (970m)

熊取北中学校 (1,890m)

万代熊取店(じゃんぼスクエア熊取) (700m)

サンディ熊取店 (800m)

ファミリーマート熊取紺屋店 (490m)

ローソン熊取野田店 (700m)

とくおか循環器・内科クリニック (510m)

永山病院 (860m)

熊取郵便局 (700m)

きのくに信用金庫熊取支店 (1,370m)
| 価格 | 2590万円 | 間取り | 3LDK+WIC +SC |
|---|---|---|---|
| 所在地 | 大阪府泉南郡熊取町桜が丘1丁目 | ||
| 交通 | JR阪和線熊取駅徒歩 18分 JR阪和線東佐野駅徒歩 20分 |
||
| 土地権利 | 所有権 | 地目 | 宅地 |
| 土地面積 | 117.00㎡ (35.39坪) (公簿) | 建物面積 | 94.41㎡ (28.55坪) |
| 道路幅員 | 北 4.70m 東 4.70m | ||
| 私道負担 | 無 | 私道負担面積 | - |
| 他面積 | - | ||
| 建物構造 | 木造 2階建 | 建築確認番号 | 第R06確認建築近確0001884号(2024年10月16日) |
| 総区画数 | 全1区画 | 販売戸数 | 1戸 |
| 建ぺい率 | 70% | 容積率 | 188% |
| 制限等 | 市街化区域 第一種中高層住居専用地域 | ||
| 駐車スペース | 普通車2台 | ||
| 建築年月 | 2025年2月 | 改装年月 | - |
| 設備・特徴 | 電気 公営水道 都市ガス 公共下水 新築一戸建て アフターサービス保証付 耐震等級3 快速停車駅 買物便利 全居室洋室 全居室収納あり シューズクローク パントリー 複層ガラス 室内物干 トイレ2ヶ所 対面キッチン リビング階段 食洗機 浴室乾燥機 庭付き 駐車2台OK 角地 | ||
| 費用等 | - | ||
| 特記事項 | ①駐車台数は車種による制限あり。 ②実際に駐車可能かはお客様にて、現地でご確認をお願いいたします。 | ||
| 現況 | 完成済 | 取引条件有効期限 | 2026年01月23日 |
| 取引態様 | 売主 | 引渡可能時期 | 契約後3ヶ月 |
| 情報公開日 | 2026年01月09日 | 次回更新予定日 | 2026年01月23日 |