= Price ============
プライスダウン!!
=========== Down =
**便利で快適な暮らしを実現するフジ住宅の新築一戸建て「アイーナネオ」**
◆限定1区画です!
◆ゆとりの敷地と充実の収納が魅力の一戸建て♪
◆エントランスをスッキリ保つシューズクローク+ファミリークロゼット!
◆家族が自然と集まりたくなるリビング階段の間取り!
◆主寝室には3帖の大型ウォークインクロゼットを設置!
◆普通車2台分の駐車スペースあり!
◆住宅性能評価取得!耐震等級3!
◆フジ住宅の新築一戸建ては【ZEH水準省エネ住宅】だから「住宅ローン減税」の対象です!
◆安心の外構工事費・税込みの価格です!



















\プライスダウン/アイーナネオ忠岡中

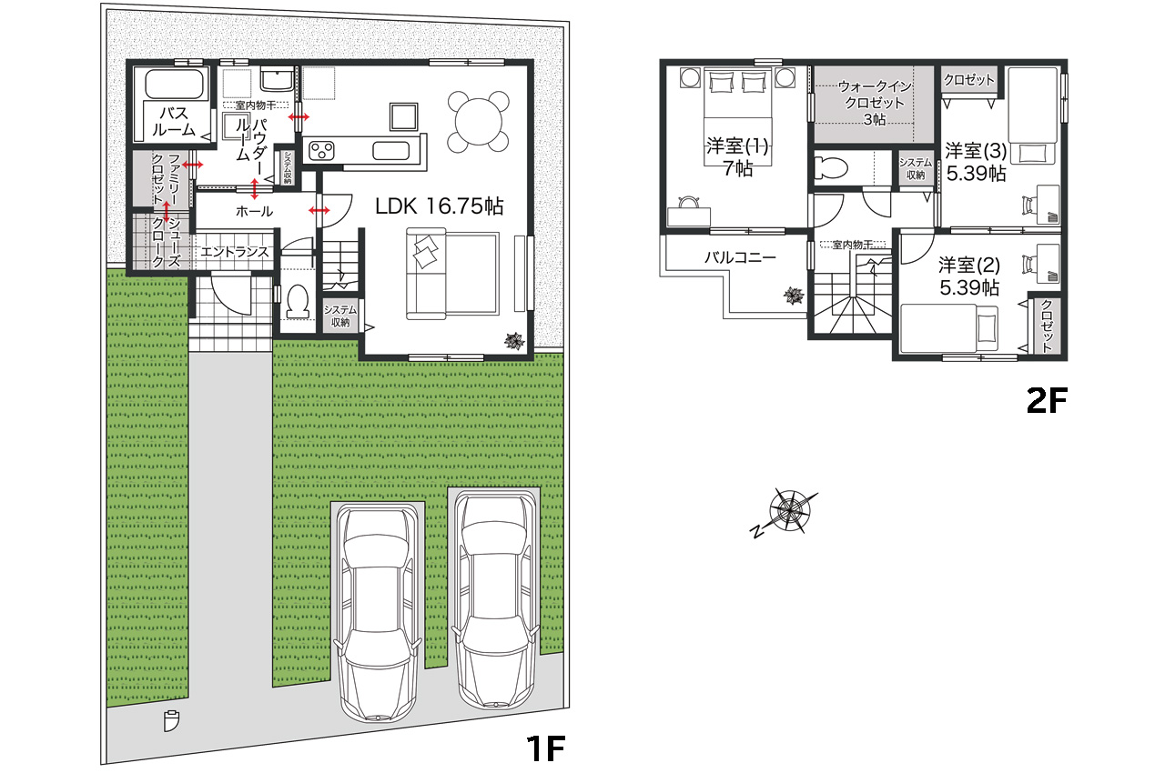
間取り図(家具・車の表記はイメージ配置になり、実際には付きません)

外観

外観

ゆとりの敷地と充実の収納が魅力(家具・車の表記はイメージ配置になり、実際には付きません)

靴以外にもベビーカーやアウトドアグッズなどが収まるシューズクローク付きのエントランス。

シューズクロークとパウダールームからアクセスできる収納たっぷりのファミリークロゼット。

家族みんなで使える便利なファミリークロゼット。

16.75帖の広々LDK。自然に家族が集まる明るくゆったりとした空間です。

三面採光で明るく開放的なLDK。リビングにはプライバシーに配慮した高窓を使用しています。

リビング側のサッシからは駐車場へ直接出入りできて便利です。

リビング内には階段下を利用したシステム収納があります。

スタイリッシュなシステムキッチン。奥まで収納でき、取り出しやすいスライド式の収納です。

キッチンは、手洗いよりキレイに洗えて節水にもなる食洗機付き。また忙しい家事の時短にもなります。

キッチンからパウダールームにつながるスムーズ動線。またパウダールームからホールへもアクセスできます。

キッチンやホール、ファミリークロゼットへもアクセス可能なゆったりスペースのパウダールーム。

パウダールーム内の室内物干(ホスクリーン)。

パウダールーム内のシステム収納。たっぷり収納できてすっきり空間を保ちます。

パウダールームからアクセスできるファミリークロゼット。

浴乾付きのバスルーム。ゆったりと寛いていただけます。

1階トイレ

2階廊下にも室内物干を設置。お天気や時間帯に関係なくお洗濯物が干せます。

2階廊下のシステム収納。各所に設けられた充実した収納ですっきりとした空間が実現します。

2階トイレ

バルコニーに面した洋室(1)(洋室7帖)。主寝室にぴったりのゆったりとしたお部屋です。

洋室(1)(洋室7帖)に併設された3帖の大型ウォークインクロゼット。

衣類以外にも色々な物を収納できるウォークインクロゼット。お部屋をより広くお使いいただけます。

洋室(1)から出入りできるバルコニー

洋室(2)(洋室5.39帖)

洋室(2)(洋室5.39帖)は、洋室(3)と続間になっています。

洋室(2)クロゼット

洋室(3)(洋室5.39帖)

続間の洋室は、間の扉を開けて広々空間でもご利用可能。

続間の洋室は、家族の人数や用途に合わせて使い分けができます。

BELSとは第3者評価機関が評価し認定した『建築物省エネルギー性能』をわかりやすく表示したものです。

【揺れに耐える耐震】地震や台風などの災害に強い「耐震等級3」を実現しました。

【揺れを吸収する制震】地震エネルギーを吸収する制震システム「TRCダンパー」を採用しています。

【FX-WOOD工法】柱材と壁面に強度を持たせ、耐震や気密性を両立させたフジ住宅独自の工法です。

【FX-BASEテクノロジー】フジ住宅独自のベタ基礎+高精度地盤調査で安心です。

【住まいの保証】第三者機関による「住宅性能評価」と「地盤保証制度」を採用。

お引渡し後、一定期間の不具合を無償で補修する安心の定期アフターサービスです。

2025年「オリコン顧客満足度調査建売住宅ビルダー」近畿第1位・近畿大阪府部門第1位を受賞しました。

忠岡小学校 (640m)

忠岡中学校 (1,270m)

ピープル忠岡チャイルドスクール (320m)

チューリップ保育園 (940m)

食品館アプロプラス忠岡店 (1,030m)

ファミリーマート小浦忠岡北店 (600m)

万代岸和田磯上店 (1,290m)

聖祐病院 (960m)

岸和田徳洲会クリニック (1,040m)

やぎ医院 (1,180m)

JAいずみの忠岡支店 (750m)

忠岡郵便局 (820m)

忠岡町立図書館 (860m)

忠岡町役場 (1,360m)

忠岡町民運動場(忠岡公園) (1,360m)
| 価格 | 2990万円 | 間取り | 3LDK+WIC +SC+FC |
|---|---|---|---|
| 所在地 | 大阪府泉北郡忠岡町忠岡中2丁目 | ||
| 交通 | 南海本線忠岡駅徒歩 13分 南海本線泉大津駅徒歩 27分 |
||
| 土地権利 | 所有権 | 地目 | 宅地 |
| 土地面積 | 157.25㎡ (47.56坪) (公簿) | 建物面積 | 94.00㎡ (28.43坪) |
| 道路幅員 | 北西 5.92m | ||
| 私道負担 | 無 | 私道面積 | - |
| 他面積 | - | ||
| 建物構造 | 木造 2階建 | 建築確認番号 | 第R06確認建築近確0001708号(2024年9月30日) |
| 総区画数 | 全1区画 | 販売戸数 | 1戸 |
| 建ぺい率 | 60% | 容積率 | 200% |
| 制限等 | 市街化区域 第一種住居地域 準防火地域 | ||
| 駐車スペース | 普通車2台 | ||
| 建築年月 | 2025年2月 | 改装年月 | - |
| 設備・特徴 | 電気 公営水道 都市ガス 公共下水 新築一戸建て アフターサービス保証付 耐震等級3 学校近し 全居室洋室 全居室収納あり シューズクローク ファミリークロゼット 複層ガラス 室内物干 トイレ2ヶ所 対面キッチン リビング階段 食洗機 浴室乾燥機 庭付き 駐車2台OK 土地広 | ||
| 費用等 | - | ||
| 特記事項 | ①駐車台数は車種による制限あり。 ②実際に駐車可能かはお客様にて、現地でご確認をお願いいたします。 | ||
| 現況 | 完成済 | 取引条件有効期限 | 2025年12月06日 |
| 取引態様 | 売主 | 引渡可能時期 | 契約後3ヶ月 |
| 情報公開日 | 2025年11月22日 | 次回更新予定日 | 2025年12月06日 |