= Price ============
プライスダウン!!
=========== Down =
**便利で快適な暮らしが叶うフジ住宅の新築一戸建て「アイーナネオ」**
◆エントランスには家族みんなで使えるファミリークロゼットを設置!
◆ワイドなパントリー付きでキッチン周りはいつもきれい♪
◆8.12帖の主寝室には収納たっぷりのウォークインクロゼット付き!
◆パウダールームや主寝室には便利な室内物干(ホスクリーン)を設置!
◆住宅性能評価取得!耐震等級3!
◆フジ住宅の新築一戸建ては【ZEH水準省エネ住宅】だから「住宅ローン減税」の対象です!
◆安心の外構工事費・税込みの価格です!





















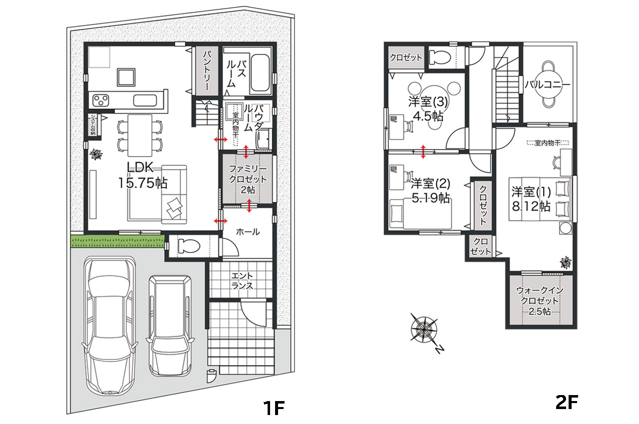
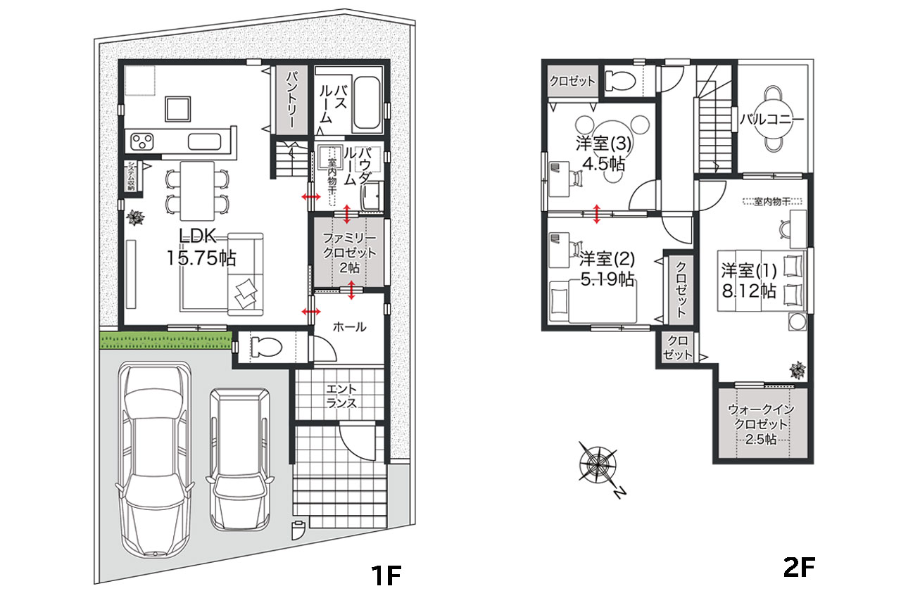
間取り図(家具・車の表記はイメージ配置になり、実際には付きません)

外観

LDK15.75帖

15.75帖のLDK。家族が集まりたくなる明るく心地よい空間です。

スマートな暮らしを実現する3LDK(家具・車の表記はイメージ配置になり、実際には付きません)

自然と家族が顔を合わせる機会が増え、家族の温かいつながりを感じられるリビング階段の間取り。

収納スペース充実のLDK。すっきりとした空間を保ちます。

清潔感のあるホワイト系のシステムキッチン

キッチンは手洗いよりきれいに洗えて節水にもなり、忙しい家事の時短にも役立つ、うれしい食洗機付き。

キッチン横の大型パントリー。食品や日用消耗品、調理器具などがすっきり収まります。

ダイニングスペース横のシステム収納。棚付きで整理がしやすく、色々な物を収納できます。

間口が広くすっきりとしたエントランス

ホールに設置された2帖のファミリークロゼット。家族みんなの衣類やアイテムを一か所にまとめて収納可能。

パウダールーム

パウダールーム内の室内物干(ホスクリーン)

ファミリークロゼットはパウダールームからもアクセスできて便利。

バスルームは浴室暖房乾燥機付き。ゆったりと寛いでいただけます。

ウォークインクロゼット併設の洋室(1)はゆとりの8.12帖。主寝室にぴったりです。

バルコニーに面した明るい洋室(1)。家具や寝具を設置しやすいゆったりとしたお部屋です。

2.5帖のウォークインクロゼット。衣類だけでなく、季節の家電など嵩張る物もすっきり収まります。

洋室(1)にはウォークインクロゼットの他にコンパクトな収納もあり、お部屋をより広く使えます。

洋室(1)にも室内物干を設置。お天気をみながら外干しと室内干しを使い分けができます。

ワイドなクロゼット付きの洋室5.19帖(洋室(2))。子供部屋におすすめのお部屋です。

続間になった洋室(2)と洋室(3)。間の扉を開放して広々とご利用いただくことも可能です。

4.5帖の洋室(3)。こちらも子供部屋や書斎などにも使えるお部屋です。

洋室(3)もクロゼット付き。

二部屋の洋室は、用途に応じてお部屋の広さを調整できます。

外観

アイーナネオ貝塚澤外観(右:1号地、左:2号地)

BELSとは第3者評価機関が評価し認定した『建築物省エネルギー性能』をわかりやすく表示したものです。

【揺れに耐える耐震】地震や台風などの災害に強い「耐震等級3」を実現しました。

【揺れを吸収する制震】地震エネルギーを吸収する制震システム「TRCダンパー」を採用しています。

【FX-WOOD工法】柱材と壁面に強度を持たせ、耐震や気密性を両立させたフジ住宅独自の工法です。

【FX-BASEテクノロジー】フジ住宅独自のベタ基礎+高精度地盤調査で安心です。

【住まいの保証】第三者機関による「住宅性能評価」と「地盤保証制度」を採用。

お引渡し後、一定期間の不具合を無償で補修する安心の定期アフターサービスです。

2025年「オリコン顧客満足度調査建売住宅ビルダー」近畿第1位・近畿大阪府部門第1位を受賞しました。

西小学校 (900m)

第一中学校 (1,700m)

二色幼稚園 (550m)

西幼稚園 (930m)

スーパーセンタートライアル二色浜店 (420m)

サンディ二色浜店 (800m)

ダイエー貝塚店 (1,060m)

ファミリーマート貝塚澤店 (180m)

青山クリニック (640m)

貝塚記念病院 (1,400m)

貝塚沢郵便局 (580m)

二色の浜公園(脇浜児童遊戯場) (730m)
| 価格 | 2690万円 | 間取り | 3LDK+WIC +FC |
|---|---|---|---|
| 所在地 | 大阪府貝塚市澤 | ||
| 交通 | 南海本線二色浜駅徒歩 10分 南海本線貝塚駅徒歩 24分 |
||
| 土地権利 | 所有権 | 地目 | 宅地 |
| 土地面積 | 97.00㎡ (29.34坪) (公簿) | 建物面積 | 91.10㎡ (27.55坪) |
| 道路幅員 | 北東 8.37m | ||
| 私道負担 | 無 | 私道負担面積 | - |
| 他面積 | - | ||
| 建物構造 | 木造 2階建 | 建築確認番号 | 第R06確認建築近確0001857号(2024年10月16日) |
| 総区画数 | 全2区画 | 販売戸数 | 1戸 |
| 建ぺい率 | 60% | 容積率 | 200% |
| 制限等 | 市街化区域 第一種住居地域 | ||
| 駐車スペース | 普通車1台 軽自動車1台 | ||
| 建築年月 | 2025年3月 | 改装年月 | - |
| 設備・特徴 | 電気 公営水道 都市ガス 公共下水 新築一戸建て アフターサービス保証付 耐震等級3 買物便利 公園近く 全居室洋室 収納多し 全居室収納あり ウォークインクロゼット ファミリークロゼット パントリー 複層ガラス 室内物干 トイレ2ヶ所 対面キッチン リビング階段 食洗機 浴室乾燥機 普通車1台軽1台OK | ||
| 費用等 | - | ||
| 特記事項 | ①駐車台数は車種による制限あり。 ②実際に駐車可能かはお客様にて、現地でご確認をお願いいたします。 | ||
| 現況 | 完成済 | 取引条件有効期限 | 2026年01月23日 |
| 取引態様 | 売主 | 引渡可能時期 | 契約後3ヶ月 |
| 情報公開日 | 2026年01月09日 | 次回更新予定日 | 2026年01月23日 |