**快適な暮らしを実現するフジ住宅の新築一戸建「アイーナネオ」**
◆住宅性能評価取得!耐震等級3!
◆経済的なオール電化(エコキュート)仕様!
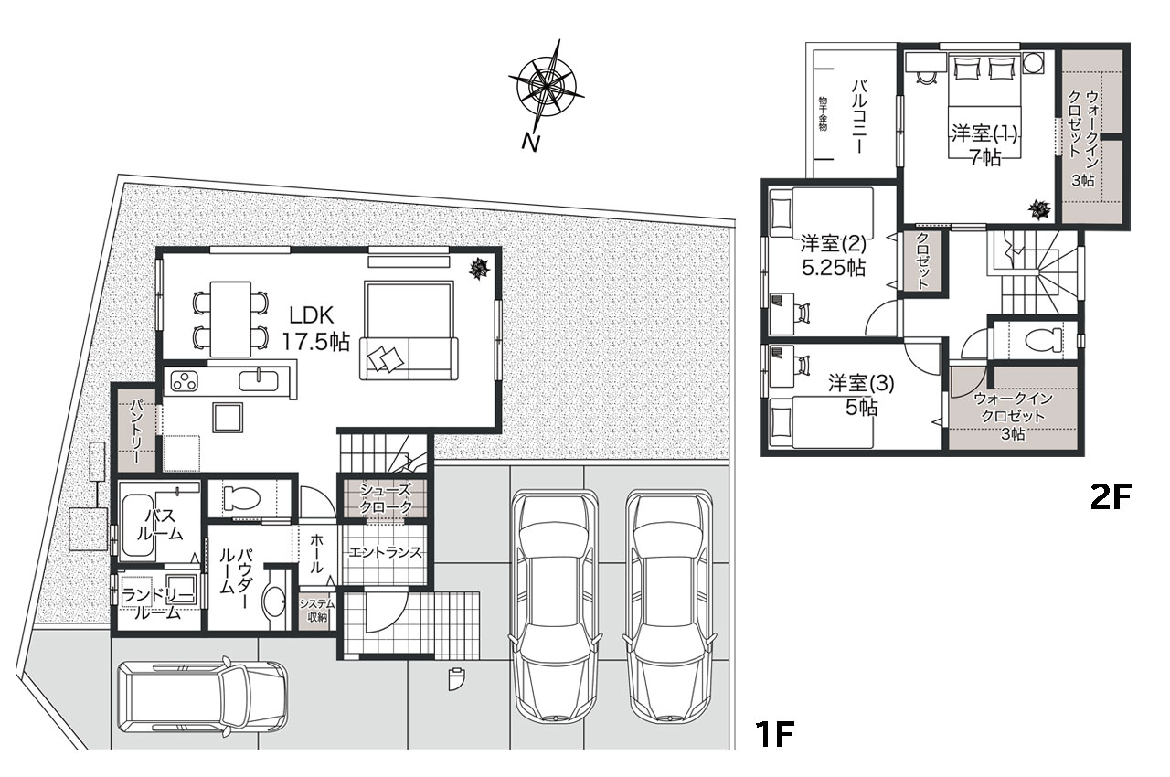
◆エントランスのシューズクロークで、すっきりスマートな空間に!
◆家族の団らんを育むLDKは便利な収納スペースが充実!
◆お部屋をより広々と使えるウォークインクロゼット!
◆駐車3台分のゆとりのスペースを確保(車種による)!
◆心地よい家族のつながりと、快適なプライベート空間を大切にする間取りです♪
◆フジ住宅の新築一戸建ては【ZEH水準省エネ住宅】だから「住宅ローン減税」の対象です!
◆安心の外構工事費・税込みの価格です!
























事前資料請求受付開始!販売開始まで契約又は予約のお申込みはできません。

アイーナネオ宮前。限定2区画です。各戸3台分の駐車スペースを確保しています。

1号地:3LDK+SC+2WIC(家具・車の表記はイメージ配置になり、実際には付きません)

2号地:3LDK+SC+2FC+WIC(家具・車の表記はイメージ配置になり、実際には付きません)

1号地:エネルギー消費性能 ★★★★(削減率30%達成)

2号地:エネルギー消費性能 ★★★★(削減率30%達成)

【揺れに耐える耐震】地震や台風などの災害に強い「耐震等級3」を実現しました。

【揺れを吸収する制震】地震エネルギーを吸収する制震システム「TRCダンパー」を採用しています。

【FX-WOOD工法】柱材と壁面に強度を持たせ、耐震や気密性を両立させたフジ住宅独自の工法です。

【FX-BASEテクノロジー】フジ住宅独自のベタ基礎+高精度地盤調査で安心です。

【住まいの保証】第三者機関による「住宅性能評価」と「地盤保証制度」を採用。

お引渡し後、一定期間の不具合を無償で補修する安心の定期アフターサービスです。

2025年「オリコン顧客満足度調査建売住宅ビルダー」近畿第1位・近畿大阪府部門第1位を受賞しました。

宮前小学校 (880m)

東和中学校 (760m)

杭ノ瀬保育所 (700m)

スーパーエバグリーン宮前店 (120m)

ファミリーマート和歌山南出島店 (380m)

エバーグリーン新中島店 (480m)

業務スーパー神前店 (900m)

ジョーシン和歌山店 (640m)

なかた消化器・内科クリニック (190m)

道浦クリニック (1,110m)

JAわかやま宮前支店 (250m)

和歌山杭ノ瀬郵便局 (770m)

紀陽銀行神前支店 (1,450m)

和歌山東公園 (780m)

和歌山ビッグホエール (1,100m)