
**便利で快適な暮らしが叶うフジ住宅の新築一戸建て「アイーナネオ」**
◆「りんくうタウン」駅まで徒歩13分!
◆特急や急行停車の「泉佐野」駅まで徒歩24分(自転車7分)!
◆各所に設置された充実の収納スペースがすっきり整った空間を保ちます!
◆普通車1台+軽1台の駐車スペースを確保!
◆りんくうシークルやりんくうプレミアムアウトレットまで徒歩10分!
◆住宅性能評価取得!耐震等級3!
◆フジ住宅の新築一戸建ては【ZEH水準省エネ住宅】です!
◆安心の外構工事費・税込みの価格です!





















BELSとは第3者評価機関が評価し認定した『建築物省エネルギー性能』をわかりやすく表示したものです。

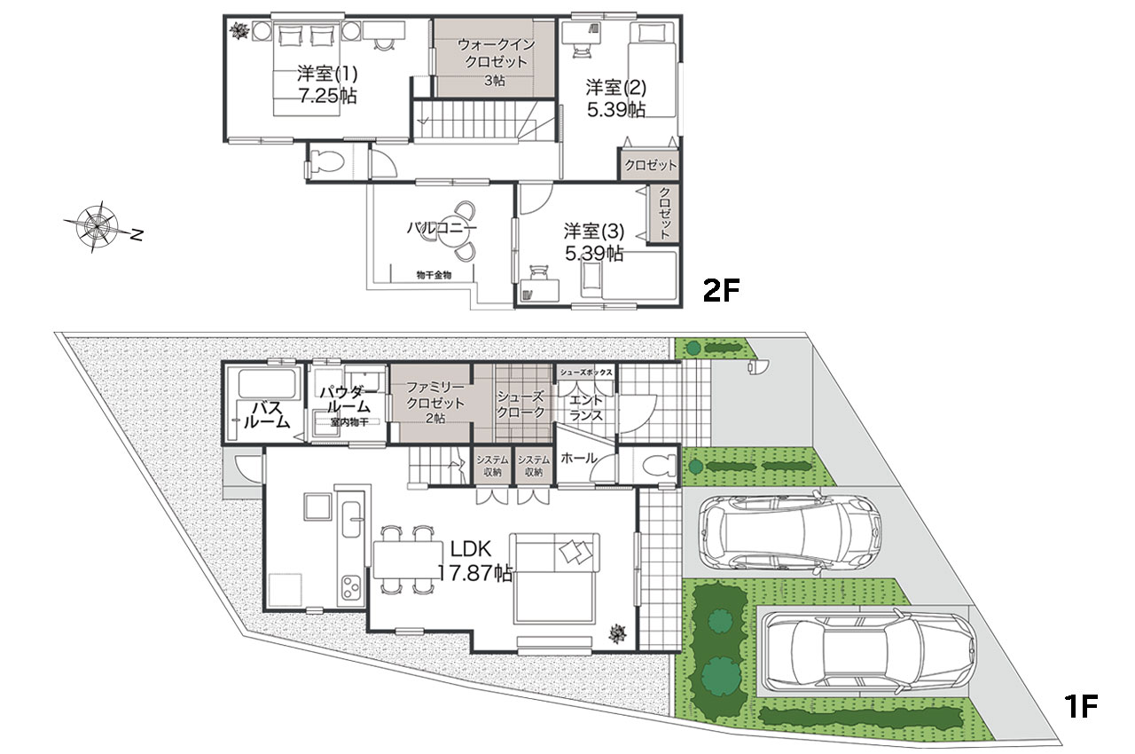
間取り図(3LDK+SC+FC+WIC):家具・車の表記はイメージ配置になり、実際には付きません

3LDK+SC+FC+WIC(家具・車の表記はイメージ配置になり、実際には付きません)

【揺れに耐える耐震】地震や台風などの災害に強い「耐震等級3」を実現しました。

【揺れを吸収する制震】地震エネルギーを吸収する制震システム「TRCダンパー」を採用しています。

【FX-WOOD工法】柱材と壁面に強度を持たせ、耐震や気密性を両立させたフジ住宅独自の工法です。

【FX-BASEテクノロジー】フジ住宅独自のベタ基礎+高精度地盤調査で安心です。

【住まいの保証】第三者機関による「住宅性能評価」と「地盤保証制度」を採用。

お引渡し後、一定期間の不具合を無償で補修する安心の定期アフターサービスです。

2026年「オリコン顧客満足度調査建売住宅ビルダー」近畿第1位・近畿大阪府部門第1位を受賞しました。

りんくうプレジャータウン シークル (750m)

りんくうプレミアム・アウトレット (790m)

業務スーパー泉佐野店 (710m)

サンディりんくうシークル店 (800m)

メガセンタートライアルりんくうタウン店 (1,230m)

イオンタウン羽倉崎 (1,240m)

セブンイレブンりんくう松原店 (590m)

セブンイレブン泉佐野松原2丁目店 (650m)

ウエルシア泉佐野羽倉崎店 (850m)

第一小学校 (1,700m)

佐野中学校 (500m)

こだまこども園 (800m)

すえひろこども園 (930m)

安松幼稚園 (2,210m)

マンデー末広公園 (1,100m)

羽原病院 (970m)

平野医院 (1,260m)

りそな銀行佐野支店 (1,860m)
| 価格 | 3490万円 | 間取り | 3LDK+WIC +SC+FC |
|---|---|---|---|
| 所在地 | 大阪府泉佐野市松原2丁目 | ||
| 交通 | JR関西空港線りんくうタウン駅徒歩 13分 南海本線泉佐野駅徒歩 24分 |
||
| 土地権利 | 所有権 | 地目 | 雑種地(宅地に変更予定) |
| 土地面積 | 136.00㎡ (41.14坪) (公簿) | 建物面積 | 95.45㎡ (28.87坪) |
| 道路幅員 | 北西 5.00m | ||
| 私道負担 | 無 | 私道負担面積 | - |
| 他面積 | - | ||
| 建物構造 | 木造 2階建 | 建築確認番号 | R07確認建築近確0002735号(2026年1月7日) |
| 総区画数 | 全2区画 | 販売戸数 | 1戸 |
| 建ぺい率 | 60% | 容積率 | 200% |
| 制限等 | 市街化区域 準工業地域 | ||
| 駐車スペース | 普通車1台 軽自動車1台 | ||
| 建築年月 | 2026年5月 | 改装年月 | - |
| 設備・特徴 | 関西電力 公営水道 都市ガス 公共下水 新築一戸建て アフターサービス保証付 耐震等級3 買物便利 LDK16帖以上 全居室洋室 収納多し 全居室収納あり ウォークインクロゼット シューズクローク ファミリークロゼット 複層ガラス 室内物干 トイレ2ヶ所 リビング階段 食洗機 浴室乾燥機 庭付き 普通車1台軽1台OK 土地広 | ||
| 費用等 | - | ||
| 特記事項 | ①駐車台数は車種による制限あり。 ②実際に駐車可能かはお客様にて、現地でご確認をお願いいたします。 | ||
| 現況 | 未完成 | 取引条件有効期限 | 2026年03月19日 |
| 取引態様 | 売主 | 引渡可能時期 | 完成後3ヶ月 |
| 情報公開日 | 2026年03月05日 | 次回更新予定日 | 2026年03月19日 |