**便利で快適な暮らしが叶うフジ住宅の新築一戸建て「アイーナネオ」**
◆家中の空気をきれいに保つ「炭の家」!
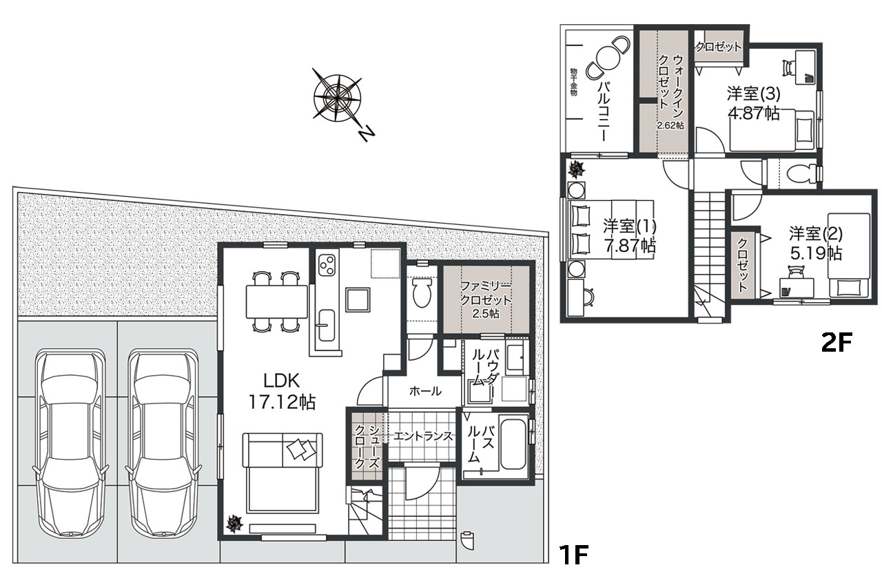
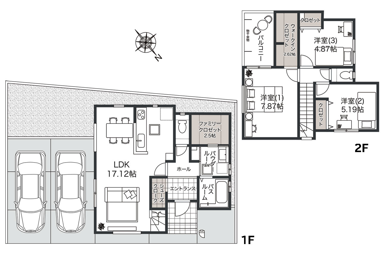
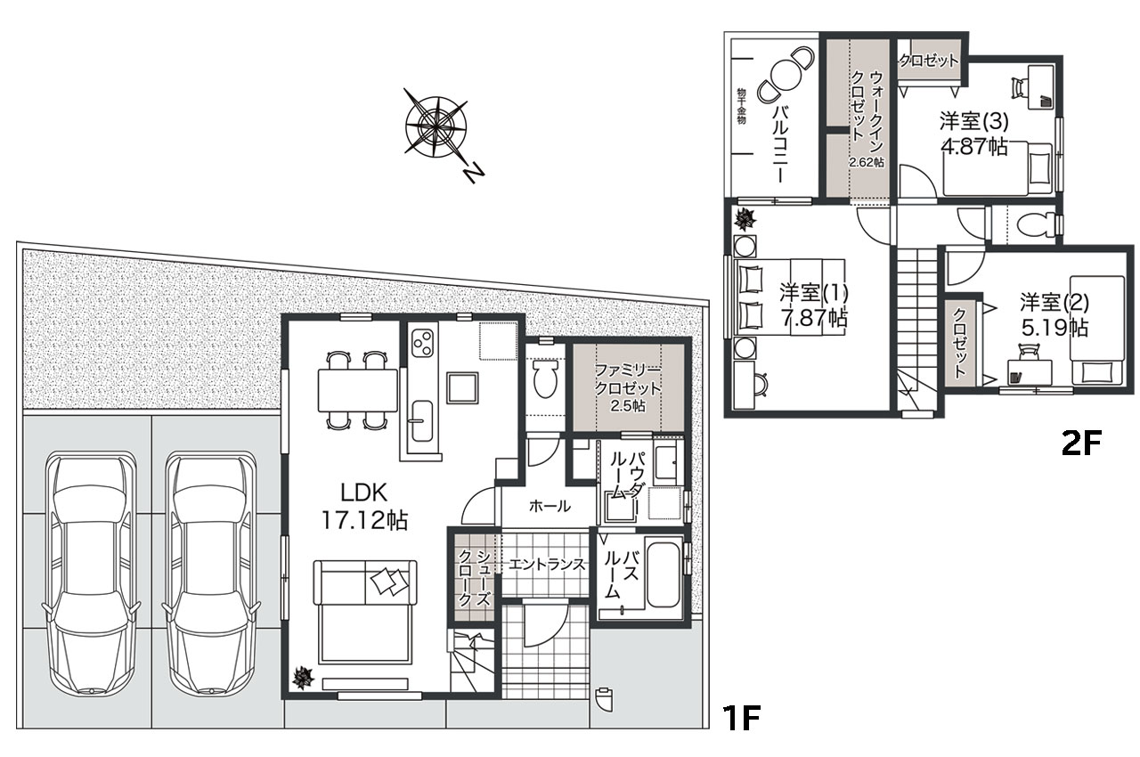
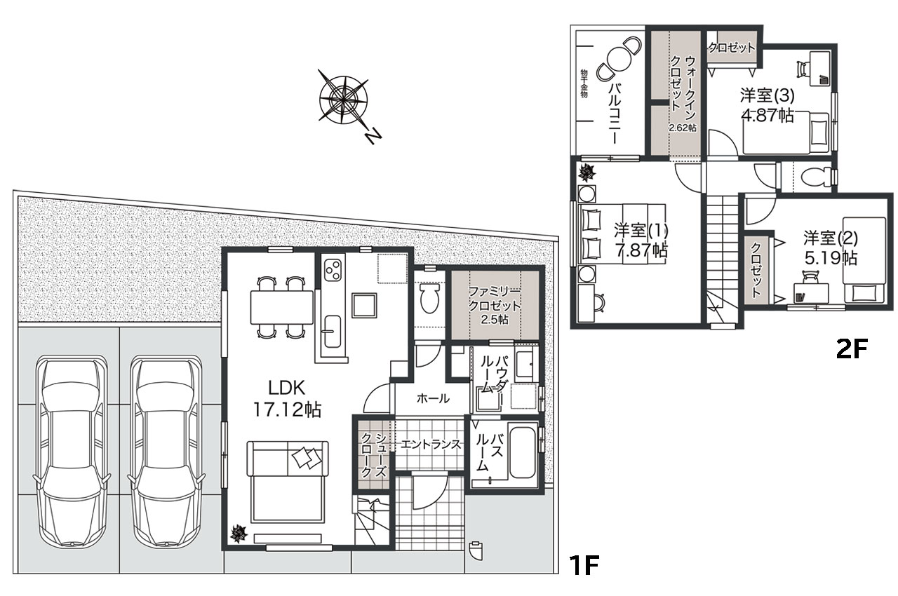
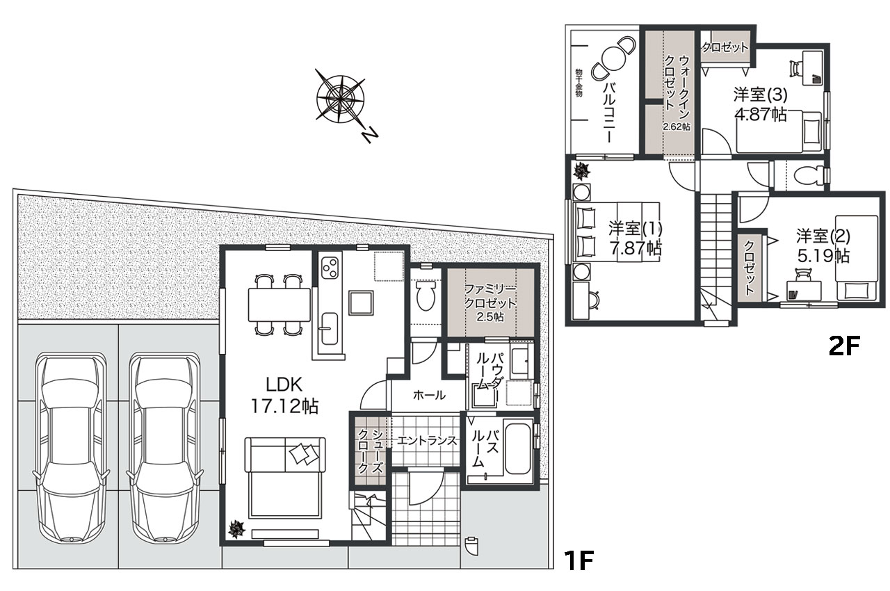
◆各所に収納が充実した間取りです!
◆主寝室に広々ウォークインクロゼットを設置!
◆間口が広く、並列に普通車2台駐車OK!
◆マンデー末広公園まで徒歩9分!子育てファミリーにもうれしい立地!
◆住宅性能評価取得!耐震等級3!
◆フジ住宅の新築一戸建ては【ZEH水準省エネ住宅】です!
◆資金計画が立てやすい外構工事費・税込みの価格です!






















外観

間取り図(家具・車の表記はイメージ配置になり、実際には付きません)

外観

3LDK+SC+FC+WIC(家具・車の表記はイメージ配置になり、実際には付きません)

LDK

LDK

LDK

LDK

キッチン(食洗機付き)

キッチン(食洗機付き)

エントランス

エントランス(シューズクローク)

パウダールーム

パウダールーム内可動棚

ファミリークロゼット

バスルーム(浴室暖房乾燥機付き)

1階トイレ

2階トイレ

洋室1

洋室1

洋室1

ウォークインクロゼット

洋室2

洋室2クロゼット

洋室3

洋室3

バルコニー

外観

駐車スペース

玄関アプローチ

【炭の家/ピュアエア】炭+PM2.5対応フィルターで、家中の空気をクリーンに保ちます。

BELSとは第3者評価機関が評価し認定した『建築物省エネルギー性能』をわかりやすく表示したものです。

【揺れに耐える耐震】地震や台風などの災害に強い「耐震等級3」を実現しました。

【揺れを吸収する制震】地震エネルギーを吸収する制震システム「TRCダンパー」を採用しています。

【FX-WOOD工法】柱材と壁面に強度を持たせ、耐震や気密性を両立させたフジ住宅独自の工法です。

【FX-BASEテクノロジー】フジ住宅独自のベタ基礎+高精度地盤調査で安心です。

【住まいの保証】第三者機関による「住宅性能評価」と「地盤保証制度」を採用。

お引渡し後、一定期間の不具合を無償で補修する安心の定期アフターサービスです。

2026年「オリコン顧客満足度調査建売住宅ビルダー」近畿第1位・近畿大阪府部門第1位を受賞しました。

末広小学校 (1,110m)

佐野中学校 (970m)

すえひろこども園 (750m)

安松幼稚園 (1,000m)

マックスバリュ羽倉崎店 (830m)

業務スーパー泉佐野店 (1,440m)

松源長滝店 (1,640m)

ファミリーマート泉佐野羽倉崎店 (320m)

セブンイレブン泉佐野羽倉崎駅前店 (430m)

セブンイレブン泉佐野南中安松店 (740m)

ウエルシア泉佐野羽倉崎店 (610m)

マンデー末広公園 (680m)

りんくうプレミアムアウトレット (1,430m)

りんくうプレジャータウン シークル (1,730m)

平野医院 (320m)

羽原病院 (480m)

浅井クリニック (790m)
| 価格 | 3330万円 | 間取り | 3LDK+WIC +SC+FC |
|---|---|---|---|
| 所在地 | 大阪府泉佐野市羽倉崎上町1丁目 | ||
| 交通 | 南海本線羽倉崎駅徒歩 4分 南海本線泉佐野駅徒歩 30分 |
||
| 土地権利 | 所有権 | 地目 | 宅地 |
| 土地面積 | 115.93㎡ (35.06坪) (公簿) | 建物面積 | 91.52㎡ (27.68坪) |
| 道路幅員 | 北東 6.00m | ||
| 私道負担 | 無 | 私道負担面積 | - |
| 他面積 | - | ||
| 建物構造 | 木造 2階建 | 建築確認番号 | R07確認建築近確0001685号(2025年9月9日) |
| 総区画数 | 全2区画 | 販売戸数 | 1戸 |
| 建ぺい率 | 60% | 容積率 | 200% |
| 制限等 | 市街化区域 第二種中高層住居専用地域 | ||
| 駐車スペース | 普通車2台 | ||
| 建築年月 | 2026年2月 | 改装年月 | - |
| 設備・特徴 | 電気 公営水道 都市ガス 公共下水 新築一戸建て アフターサービス保証付 炭の家 耐震等級3 駅近 公園近く 全居室洋室 収納多し 全居室収納あり ウォークインクロゼット シューズクローク ファミリークロゼット 複層ガラス トイレ2ヶ所 対面キッチン リビング階段 食洗機 浴室乾燥機 庭付き 駐車2台OK 前面道路6m以上 | ||
| 費用等 | - | ||
| 特記事項 | ①駐車台数は車種による制限あり。 ②実際に駐車可能かはお客様にて、現地でご確認をお願いいたします。 | ||
| 現況 | 完成済 | 取引条件有効期限 | 2026年05月05日 |
| 取引態様 | 売主 | 引渡可能時期 | 契約後3ヶ月 |
| 情報公開日 | 2026年04月21日 | 次回更新予定日 | 2026年05月05日 |